22 Burns Road, Portland VIC 3305
Property Details
7
3
House
Description
Property Details: • Type: House
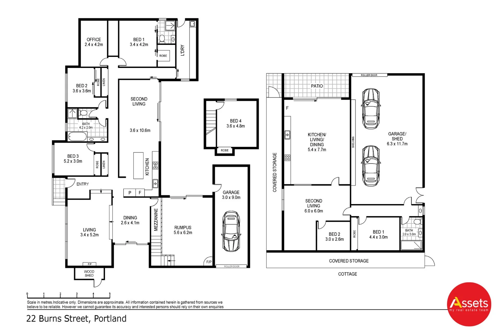
• Bedrooms: 7 • Bathrooms: 3
Description: Looking for a home that can help pay for itself? Welcome to Sleepin' Saltys on Burns-a unique opportunity where comfort, space, and smart investing come together. Set on a generous 2000m² block, this versatile property includes a fully self-contained unit that has previously operated as a successful Airbnb. With its own parking area and plenty of space for trailers or boats, it's ideal for generating short-term rental income, accommodating extended family, or running a home-based business. Whether you're an investor or a homeowner, this ready-made income stream could significantly offset your mortgage. The main residence is a substantial double brick family home, thoughtfully built in the mid-1980s and since updated to combine timeless design with modern convenience. It features double-glazed windows (some tinted), three bathrooms, updated floor coverings, central heating throughout, and restored roofing. Designed with family living in mind, the home offers three separate living areas, including a main lounge with a new reverse cycle split system and a slow combustion heater with an internal wood box, easily filled from the external storage shed. At the heart of the home, the central kitchen boasts a double oven and flows seamlessly into a beautifully maintained, fully enclosed garden yard-a perfect setting for entertaining, relaxing, or letting the kids and pets roam freely. Enjoy your own backyard harvest with fruit trees including pomegranate, lemon, lime, and nectarine, a passionfruit vine, and two raised vegetable gardens-fresh produce just steps from your door. Additional shedding adds further flexibility for storage, hobbies, or a workspace, making this a true all-rounder property. Whether you're a growing family, a dual-living buyer, or a savvy investor looking to take advantage of a thriving short-term rental, this property delivers space, lifestyle, and financial upside.
Location
Address
22 Burns Road, Portland VIC 3305
City
Portland
Features and Finishes
None
Legal Notice
Our comprehensive database is populated by our meticulous research and analysis of public data. MirrorRealEstate strives for accuracy and we make every effort to verify the information. However, MirrorRealEstate is not liable for the use or misuse of the site's information. The information displayed on MirrorRealEstate.com is for reference only.