224/170 The Parade, Norwood SA 5067
Property Details
2
2
Townhouse
Description
Property Details: • Type: Townhouse
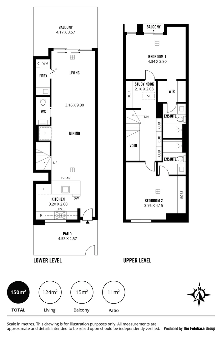
• Bedrooms: 2 • Bathrooms: 2
Description: ** WE ARE PLEASED TO ACCEPT APPLICATIONS PRIOR TO INSPECTION ONLINE VIA WWW.RESIDENTIALLETTING.COM.AU ** ** ALL ATTENDEES MUST REGISTER TO ATTEND THE OPEN. CLICK ON 'BOOK INSPECTION' TO REGISTER ** Step into a home that delivers effortless sophistication, contemporary comfort, and an enviable cosmopolitan lifestyle. While this residence is no longer brand new, it has been immaculately maintained and continues to present in near-showroom condition, offering the feel and finish of a premium modern build without compromise. Positioned in a highly desirable urban setting, this stunning dual-level apartment delivers space, style, and functionality in equal measure. Designed with lifestyle in mind, it is perfectly suited to professionals or couples seeking a refined home close to everything that matters. From the moment you enter, you are greeted with light-filled interiors, quality finishes, and a seamless flow between living and entertaining spaces. DOWNSTAIRS LIVING: - Expansive open-plan living and dining area designed for comfort and entertaining - Designer kitchen positioned as the central hub of the home - Quality chef-style appliances including gas cooktop and dishwasher - Stone benchtops and sleek cabinetry with excellent storage solutions - Seamless indooroutdoor flow to private balcony area - Perfect space for morning coffee, evening wine, or relaxed weekend dining - Separate laundry for added convenience - Guest powder room with vanity UPSTAIRS ACCOMMODATION: - Luxurious master suite featuring walk-in robe and stylish ensuite bathroom - Second generous bedroom complete with built-in robes and its own ensuite bathroom - Dedicated study nook with built-in desk, ideal for working from home or study - Additional storage cupboards providing excellent practical functionality ADDITIONAL FEATURES: - Reverse cycle heating and cooling for year-round comfort - Secure parking - Thoughtful design with excellent separation between living and sleeping zones - High-quality fixtures, fittings, and finishes throughout - Private and secure low-maintenance lifestyle LOCATION AND LIFESTYLE: Perfectly positioned to enjoy the best of urban living, this property places you within easy reach of everyday conveniences and lifestyle attractions, including: - A vibrant selection of cafés, restaurants, and boutique eateries - Popular wine bars and evening dining precincts - Local shopping, supermarkets, and essential services - Public transport links providing quick access to the CBD and surrounding suburbs - Nearby parklands and green open spaces for recreation and leisure - Easy commuting routes to key employment and education hubs This is an outstanding opportunity to secure a refined residence in a highly sought-after location, offering the perfect balance of lifestyle, convenience, and contemporary living. DISCLAIMER: All information contained in this advertisement has been gathered from sources we believe to be accurate; however, we cannot guarantee or give any warranty about the information provided and we accept no liability for any errors or omissions. Interested parties should seek independent advice before making any leasing decisions. RLA168235
Location
Address
224/170 The Parade, Norwood SA 5067
City
Norwood
Legal Notice
Our comprehensive database is populated by our meticulous research and analysis of public data. MirrorRealEstate strives for accuracy and we make every effort to verify the information. However, MirrorRealEstate is not liable for the use or misuse of the site's information. The information displayed on MirrorRealEstate.com is for reference only.