23 Medew Street, Churchill VIC 3842
Property Details
Vacant Land
Description
Property Details: • Type: Vacant Land
• Bedrooms: 0 • Bathrooms: 0
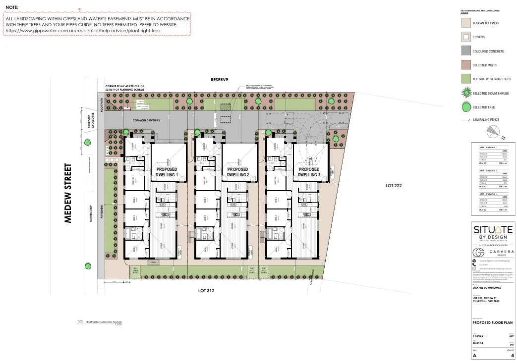
Description: Situated in one of the area's most exciting new estates, this expansive 1122m2 (approx.) parcel of land offers a rare opportunity to secure a blank canvas with exceptional future potential. Perfectly positioned in a growing, family-friendly community, this premium block combines space, flexibility, and long term value. Whether you're looking to build your dream home with room to move, develop now, or landbank for future growth, this is an opportunity not to be missed. With wide frontage and generous dimensions, the block is ideally suited for a substantial residence or potential subdivision (STCA), making it an ideal proposition for homeowners, investors, and developers alike. Features include: - Massive 1122m2 (approx.) allotment in a high demand estate. - Flat, cleared, and ready to build. - Outstanding potential for future subdivision (Subject to Council Approval). - Positioned among quality new builds in a vibrant, emerging neighbourhood. - Potential to acquire both 23 Medew Street & the adjoining block (14 Oakhill Terrace, Churchill) and subdivide further (STCA). - Close to shops, parks, and Churchill's CBD. - Please note there are approved (conditional) planning permits for 6 x homes (3 on each block). - The approved plans are for: 3 separate / 4 bedroom / + 1 study / 2 x living / 2 bathroom and double car garage homes - Suit a potential investor, developer and/or builder looking to capitalise on a site (or both sites) which have had the plans approved (conditionally). Opportunities like this are becoming increasingly rare - secure your future in this thriving estate today.
Location
Address
23 Medew Street, Churchill VIC 3842
City
Churchill
Features and Finishes
None
Legal Notice
Our comprehensive database is populated by our meticulous research and analysis of public data. MirrorRealEstate strives for accuracy and we make every effort to verify the information. However, MirrorRealEstate is not liable for the use or misuse of the site's information. The information displayed on MirrorRealEstate.com is for reference only.