14335 Magnolia Bl, Sherman Oaks, CA 91423
Property Details
2
Description
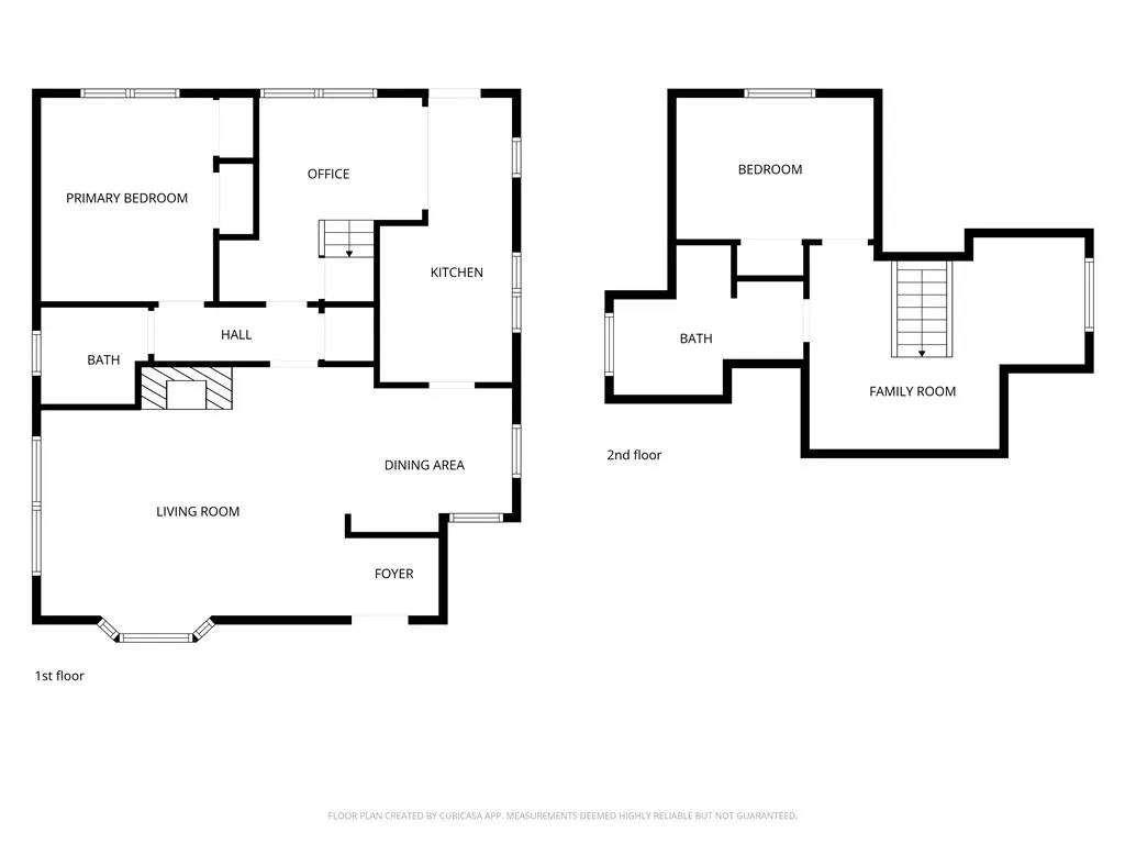
Discover the best deal in Sherman Oaks! This adorable two-story cottage features two bedrooms, two bathrooms, and a detached two-car garage with incredible ADU potential. The private gated yard, ringed with mature trees and a large, covered patio creates a perfect outdoor retreat, while the interior shines with new lighting and fresh paint. As you step through the front gate, you are welcomed by a home that feels like a private escape. The open living space has a beautiful bay window, brick fireplace and flows seamlessly to a sweet dining area with glass front cabinets. The bright kitchen has plenty of counter and cabinet space and opens up to a bonus area - a versatile space that could easily become a breakfast nook, your new favorite study or a secondary living area. Throughout the lower level, original hardwood floors add a touch of timeless character. The first level also features a bedroom and full bath - complete with new designer tile and a refinished tub. Upstairs, you'll find a charming loft area - a space just waiting to become a quiet sitting room or a dedicated workspace. Another bedroom and large bathroom with a tiled, walk in shower complete the 2nd story. Large windows throughout the home frame verdant views of the mature landscaping, bringing the beauty of the outdoors inside. Located just moments from Trader Joe's and the Fashion Square Mall, you have the best of Sherman Oaks right at your fingertips. This is more than just a house; it is the peaceful, stylish home you have been searching for.
PROPERTY DETAILS: Square Feet: 1345 | Bathrooms: 2
INTERIOR FEATURES: • Appliances: Range Hood, Gas Range, Dishwasher • Flooring: Tile, Carpet, Wood • Cooling: Central Air • Common Walls: No Common Walls • Fireplaces: Living Room • Additional Interior Features: Built-in Features, Recessed Lighting
EXTERIOR FEATURES: • Parking: 2 Garage Spaces, 4 Parking Spaces, Garage Faces Side. • Patio: Patio, Covered • Pool Description: None • Spa: None • Zoning: LARD 1.5 • Additional Exterior/Lot Features: Patio Front Yard, Back Yard
LISTING AGENT: Agent: Jill Donaty | Office: The Donaty Group | Phone: 8182312670 | Email: [email protected]
LISTING INFORMATION: MLS#: SR26080240 | Status: FOR SALE
Location
Address
14335 Magnolia Bl
City
Sherman Oaks
Features and Finishes
Interior Features:
• Appliances: Range Hood, Gas Range, Dishwasher
• Flooring: Tile, Carpet, Wood
• Cooling: Central Air
• Common Walls: No Common Walls
• Fireplaces: Living Room
• Additional Interior Features: Built-in Features, Recessed Lighting
Exterior Features:
• Parking: 2 Garage Spaces, 4 Parking Spaces, Garage Faces Side.
• Patio: Patio, Covered
• Pool Description: None
• Spa: None
• Zoning: LARD 1.5
• Additional Exterior/Lot Features: Patio Front Yard, Back Yard
Legal Notice
Our comprehensive database is populated by our meticulous research and analysis of public data. MirrorRealEstate strives for accuracy and we make every effort to verify the information. However, MirrorRealEstate is not liable for the use or misuse of the site's information. The information displayed on MirrorRealEstate.com is for reference only.