2320 54 Avenue, Calgary, AB, T3E 1M1
Property Details
5
4
Detached
Description
Property Details: - Type: Detached - Bedrooms: 5 - Bathrooms: 4 - MLS#: A2296725 Listed By: RE/MAX HOUSE OF REAL ESTATE
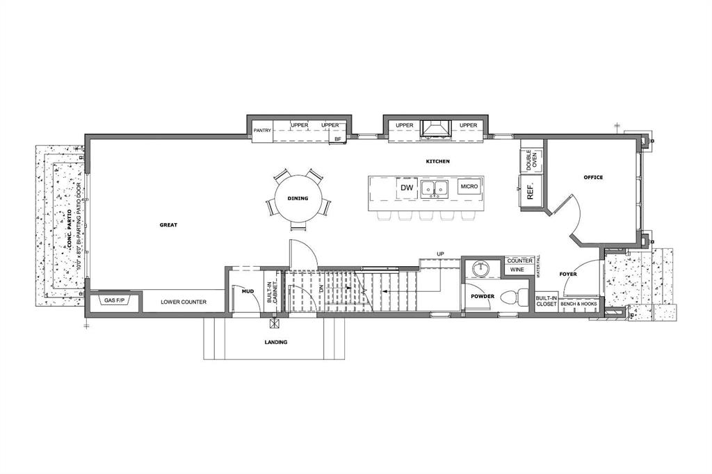
Clean lines, thoughtful design, and a layout that just makes sense! This LUXURY DETACHED INFILL in NORTH GLENMORE PARK is the kind of home that feels elevated without trying too hard, where every space flows naturally and every detail has been considered.
Step into a bright FOYER with built-in storage and a convenient bench area that keeps everyday life organized. Just off the entrance, a private OFFICE creates the perfect work-from-home setup without sacrificing the rest of the main living space. Moving further in, the home opens up into a stunning open-concept layout where the KITCHEN, DINING, and LIVING areas all connect seamlessly.
The kitchen is designed to be both functional and inviting, featuring a large ISLAND with seating, full-height cabinetry, and a built-in that keeps everything tucked away. Integrated THERMADOR appliances and clean finishes give it a refined, modern feel. Just off to the side, a dedicated COFFEE BAR or WINE STATION adds an extra layer of convenience for everyday living and entertaining.
At the back of the home, the LIVING ROOM is anchored by a GAS FIREPLACE and framed by large windows that bring in natural light throughout the day. The DINING AREA sits right between the kitchen and living space, creating an easy flow whether you’re hosting or just enjoying a quiet night in. A well-designed MUDROOM connects everything and keeps the transition from outdoors clean and functional.
Upstairs, the PRIMARY SUITE feels like a true retreat with VAULTED CEILINGS, a spacious WALK-IN CLOSET, and a spa-inspired ENSUITE complete with a freestanding tub, double vanity, and a large shower with a built-in bench. Two additional bedrooms are positioned on the opposite side for privacy and share a full bathroom, while a central BONUS ROOM offers flexible space for a media area, playroom, or second lounge. The upstairs LAUNDRY room adds everyday convenience right where you need it.
The fully finished basement takes things even further with a self-contained LEGAL SUITE featuring its own KITCHEN, LIVING AREA, two bedrooms, bathroom, and separate laundry. Whether used for rental income, guests, or extended family, it adds serious versatility to the home.
Located in NORTH GLENMORE PARK, this home is surrounded by some of Calgary’s most loved outdoor spaces. You’re minutes to SANDY BEACH and the RESERVOIR pathways, with easy access to GLENMORE ATHLETIC PARK for year-round recreation. Quick routes to CROWCHILD TRAIL and GLENMORE TRAIL make commuting simple, while nearby amenities, local cafes, and shopping keep daily life convenient. Families will appreciate access to JENNIE ELLIOTT SCHOOL, BISHOP PINKHAM SCHOOL, and CENTRAL MEMORIAL HIGH SCHOOL, along with CATHOLIC options including ST. JAMES SCHOOL and ST. MARY’S HIGH SCHOOL, offering strong education pathways within close reach.
This high-end home delivers the perfect balance of design, function, and location, making everyday living feel easy.
This detached home located at 2320 54 Avenue, Calgary is currently for sale and has been available on Zolo.ca for 1 day. This property is listed at $1,425,000 with an estimated mortgage of $5,245* per month. It has 5 beds, 4 bathrooms, and is 1,981 square feet. The property was built in 2026. 2320 54 Avenue, Calgary is in the North Glenmore Park neighborhood Calgary.
Location
Address
2320 54 Avenue, Calgary, AB, T3E 1M1
City
Calgary
Features and Finishes
None
Legal Notice
Our comprehensive database is populated by our meticulous research and analysis of public data. MirrorRealEstate strives for accuracy and we make every effort to verify the information. However, MirrorRealEstate is not liable for the use or misuse of the site's information. The information displayed on MirrorRealEstate.com is for reference only.