236 Rachel Cres Unit E
CAD 474,900
For Sale
MLS: 40680350
Property Details
Bedrooms
2
Bathrooms
2
Property Type
Row/Townhouse
Description
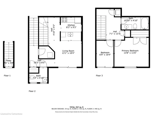
MLS#: 40680350 Type: Row/Townhouse Living Space: 925 sqft Year Built: 2013 Parking Spaces: 1 Garage Spaces: N/A Basement: None, Unfinished Swimming Pool: No Annual Taxes: $2571 Maintenance Fees: $204.8
Location
Address
236 Rachel Cres Unit E
City
Kitchener
Legal Notice
Our comprehensive database is populated by our meticulous research and analysis of public data. MirrorRealEstate strives for accuracy and we make every effort to verify the information. However, MirrorRealEstate is not liable for the use or misuse of the site's information. The information displayed on MirrorRealEstate.com is for reference only.