24 Gouldian Avenue, Condon QLD 4815
Property Details
3
1
House
Description
Property Details: • Type: House
• Bedrooms: 3 • Bathrooms: 1
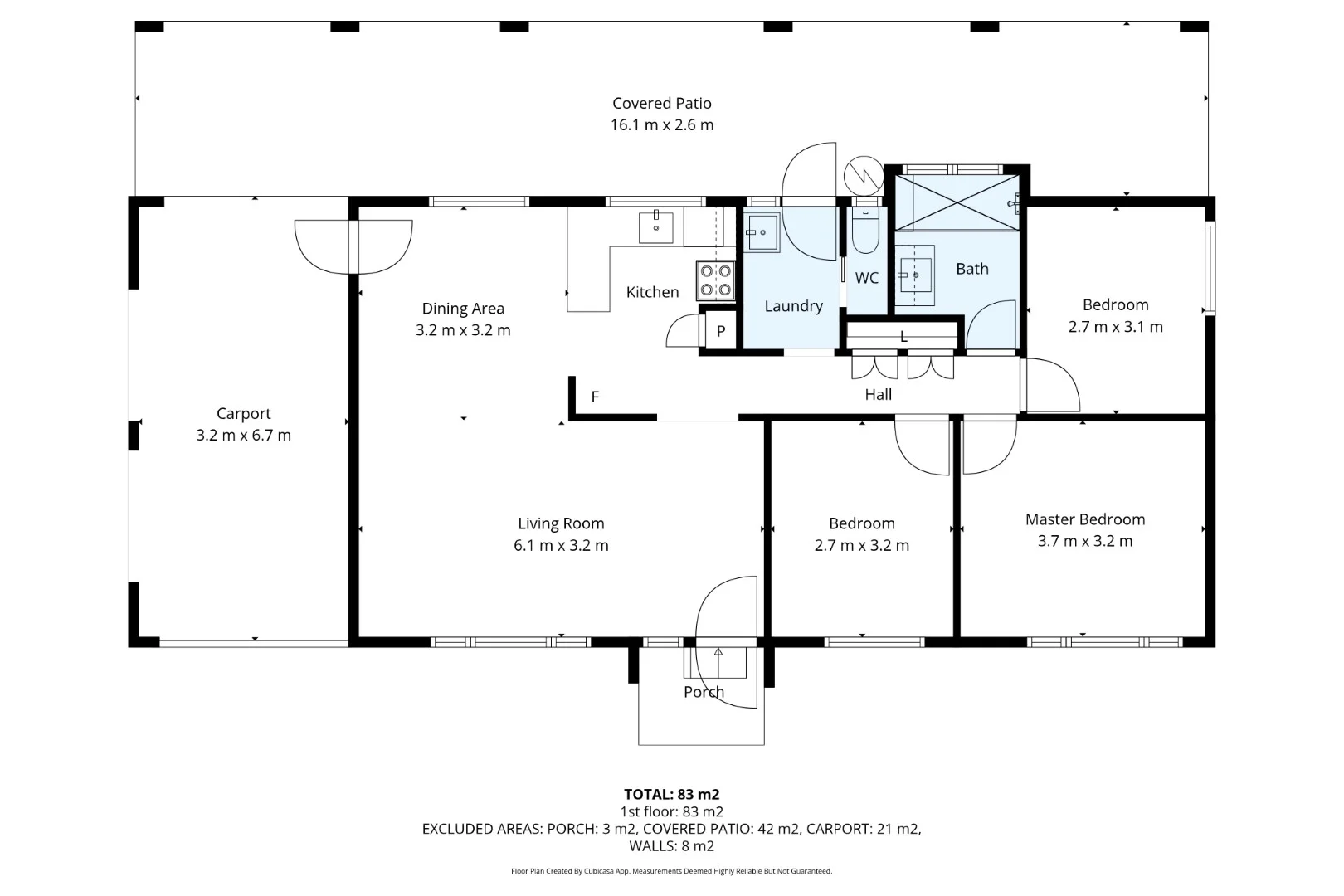
Description: This solid lowset masonry block home offers comfort, convenience and charm in a location close to everything you need. Loved by the same owner for 36 years, the property has been beautifully maintained and recently refreshed with a full renovation. Featuring three air-conditioned bedrooms and a stylishly renovated bathroom, the home is move-in ready. The functional kitchen overlooks the open plan living and dining area, creating a welcoming space for everyday living. Outside, the established gardens are a standout, lush, manicured and thoughtfully cared for over decades. A garden shed provides handy storage, while the open carport offers easy, drive through access. Positioned in Townsville's sought-after south-west, Condon is a well-established suburb known for its family-friendly appeal, spacious blocks and excellent connectivity. Popular with homeowners and investors alike, the area offers easy access to local schools, parks and sporting facilities, along with major amenities including Willows Shopping Centre. With quick links to the Ring Road, commuting to the CBD, Lavarack Barracks, James Cook University and the hospital precinct is effortless. Offering a mix of solid homes and future potential, Condon continues to be a smart choice for buyers seeking lifestyle, convenience and long-term value. Key Features: Solid lowset masonry block construction on 600 sqm block Three bedrooms Fully air-conditioned with near new split system air conditioning New internal paint and floor coverings New External Paint Renovated modern bathroom Renovated Kitchen Crimsafe security screens Fully Fenced yard Open carport Garden shed Beautiful, well-established gardens Land size: 600 m2 Rates (including water): $2 011.03 half yearly Rental Appraisal: $480.00 to $500.00 per week With its strong location, comfortable living and value add potential, this is an opportunity that will not last. Inspection is recommended. Contact Tanya Amos on 0407 937 230 today to arrange your inspection or to find out more. Disclaimer: Helen Munro Property has prepared this information using every endeavour to ensure that the information given is true and accurate but accepts no responsibility or liability in respect of any errors, omissions or inaccuracies that may occur. All prospective purchasers should endeavour to make their own enquiries to verify the accuracy of the information provided.
Location
Address
24 Gouldian Avenue, Condon QLD 4815
City
Condon
Features and Finishes
None
Legal Notice
Our comprehensive database is populated by our meticulous research and analysis of public data. MirrorRealEstate strives for accuracy and we make every effort to verify the information. However, MirrorRealEstate is not liable for the use or misuse of the site's information. The information displayed on MirrorRealEstate.com is for reference only.