244, High Street, Laurencekirk, AB301BP
Property Details
Land
Description
Property Details: • Type: Land • Tenure: N/A • Floor Area: N/A
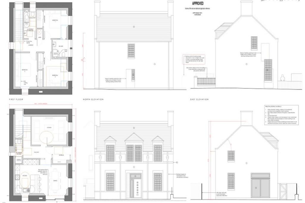
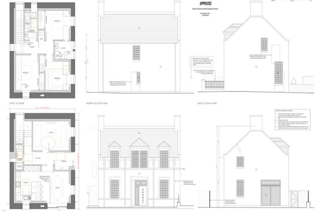
Key Features: • FANTASTIC DEVELOPMENT OPPORTUNITY*** FULL BUILDING*** Former Cadet Hall located in the town of Laurencekirk with planning permission for 2 residential homes. Aberdeenshire Council ref:APP/2024/1551 • ***RARE AUCTION ENTRY - PRICED TO SELL*** Former Army Cadet Drill Hall and ancillary accommodation, arranged across ground and first floors. Was sold £225,000 previously*** • ***HUGE DEVELOPMENT POTENTIAL*** Planning permission was recently granted for the conversion of the drill hall and new build to create 2 three bedroom dwellings*** • The town offers a range of essential amenities such as food shops, restaurants and schools such as Laurencekirk Primary School and the local secondary school Mearns Academy. • Laurencekirk is a small town in the historic county of Kincardineshire, Scotland. Laurencekirk train station is short distance from the property. Aberdeen city centre is a 35 minute car journey away.
Location: • Nearest Station: N/A • Distance to Station: N/A
Agent Information: • Address: 241 Kilmarnock Road Glasgow G41 3JF
Full Description: ** SALE BY AUCTION - 18 July 2025 - Deadline for Offers **EXCELLENT DEVELOPMENT OPPORTUNITY*** DETACHED FULL BUILDING WITH PLANNING PERMISSION*** Former Cadet Hall located in the town of Laurencekirk, Kincardineshire. Planning permission granted for conversion of the drill hall into a 3 bed dwelling. Also the creation of a new 3 bed separate dwelling. May be suitable for multiple other uses - subject to consents. Former Army Cadet Drill Hall and ancillary accommodation, arranged across ground and first floors. Accessed from both the High Street, and via a lane to the rear, the property comprises a former townhouse that has been converted and extended for its previous use. At the front, the property provides former meeting rooms and offices across ground and first floors totaling 1,404 sq ft (130.39 sq m). The first floor is currently inaccessible due to the removal of the staircase, this is due to the deterioration of the property. This front element is therefore effectively in shell condition with stone elevations and original sash windows. The rear of the property comprises a ground floor extension totalling 4,966 sq ft (461.38 sq m). This includes a kitchen, former drill hall, an armoury and a full 25m indoor firing range. HUGE DEVELOPMENT POTENTIAL*** ***IDEAL DEVLOPMENT SITE*** SOLD WITH PLANNING PERMISSION APP/2024/1551Laurencekirk is a small town in the historic county of Kincardineshire, Scotland. Laurencekirk is in easy reach of the A90 Aberdeen/Dundee. The town offers a range of essential amenities such as food shops, restaurants and schools such as Laurencekirk Primary School and the local secondary school Mearns Academy. Laurencekirk train station is short distance from the property. Aberdeen city centre is a 35 minute car journey away.Auction Details18 July 2025, 12pm Deadline for OffersHow to Bid Now Submit an enquiry now or visit our website for full details on how to BID ON THIS PROPERTY.Future Property Auctions - Scotland's Largest Land and Property Auction House. Over 400 lots auctioned every 2 weeks including flats, houses, land & commercial.Get a Fast Sale and a Fair Price with Future Property Auctions. Contact Us now for a FREE Auction Valuation.
Location
Address
244, High Street, Laurencekirk, AB301BP
City
Laurencekirk
Features and Finishes
FANTASTIC DEVELOPMENT OPPORTUNITY*** FULL BUILDING*** Former Cadet Hall located in the town of Laurencekirk with planning permission for 2 residential homes. Aberdeenshire Council ref:APP/2024/1551, ***RARE AUCTION ENTRY - PRICED TO SELL*** Former Army Cadet Drill Hall and ancillary accommodation, arranged across ground and first floors. Was sold £225,000 previously***, ***HUGE DEVELOPMENT POTENTIAL*** Planning permission was recently granted for the conversion of the drill hall and new build to create 2 three bedroom dwellings***, The town offers a range of essential amenities such as food shops, restaurants and schools such as Laurencekirk Primary School and the local secondary school Mearns Academy., Laurencekirk is a small town in the historic county of Kincardineshire, Scotland. Laurencekirk train station is short distance from the property. Aberdeen city centre is a 35 minute car journey away.
Legal Notice
Our comprehensive database is populated by our meticulous research and analysis of public data. MirrorRealEstate strives for accuracy and we make every effort to verify the information. However, MirrorRealEstate is not liable for the use or misuse of the site's information. The information displayed on MirrorRealEstate.com is for reference only.