248 Corcoran Street, Currajong QLD 4812
Property Details
3
1
House
Description
Property Details: • Type: House
• Bedrooms: 3 • Bathrooms: 1
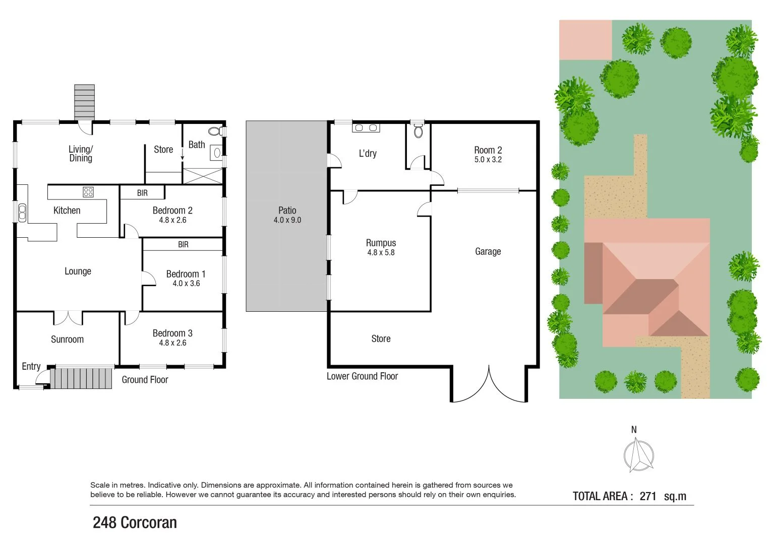
Description: Welcome to 248 Corcoran Street Currajong! IMPORTANT INFORMATION: Rent will be increasing to $580 p/w after 3 months from the lease commencement date. Featuring a spacious living room, a well-maintained backyard, and a single garage space, this property is perfect for a small family or professionals looking for a comfortable place to call home. The property boasts a modern interior design and is filled with natural light, creating a warm and inviting atmosphere. Located in a convenient corner location, this property offers easy access to local amenities, parks, and schools. Whether you enjoy relaxing in the backyard or entertaining friends in the living room, this property has something for everyone. Property Features: • 3 good sized bedrooms with polished wooden flooring and built ins to the main bedroom. • Spacious kitchen with ample counter and cupboard space. • Bathroom featuring step-in shower and toilet. • 3 living areas (Entry/Sunroom/Dining room at rear). AVAILABLE APPROX: 23/04/2026. OUR AGENCY WILL ONLY PROCESS APPLICATIONS ONCE YOU HAVE EITHER ATTENDED A VIEWING OF THE PROPERTY OR VIEWED THE WALK-THROUGH VIDEO AND ARE HAPPY TO PROCEED WITH YOUR APPLICATION AND SIGN OUR WAIVER CONFIRMING YOU HAVE VIEWED THE WALK-THROUGH VIDEO.
Location
Address
248 Corcoran Street, Currajong QLD 4812
City
Currajong
Legal Notice
Our comprehensive database is populated by our meticulous research and analysis of public data. MirrorRealEstate strives for accuracy and we make every effort to verify the information. However, MirrorRealEstate is not liable for the use or misuse of the site's information. The information displayed on MirrorRealEstate.com is for reference only.