25 Great Lister Street, Birmingham, B7 4LS
Property Details
None
Description
Property Details: • Type: N/A • Tenure: N/A • Floor Area: N/A
Key Features: • Former Bodyguard Workwear and A B Fletchers Auto Site • 28,987 ft2 (approx.) • Excellent Transport Links • Less than 1 mile to Spaghetti • 37,000 Daily Car Movements • Less than 1 mile from HS2 Terminal and proposed Birmingham City FC ground
Location: • Nearest Station: N/A • Distance to Station: N/A
Agent Information: • Address: The Mint 95 Icknield Street Hockley Birmingham B18 6RU
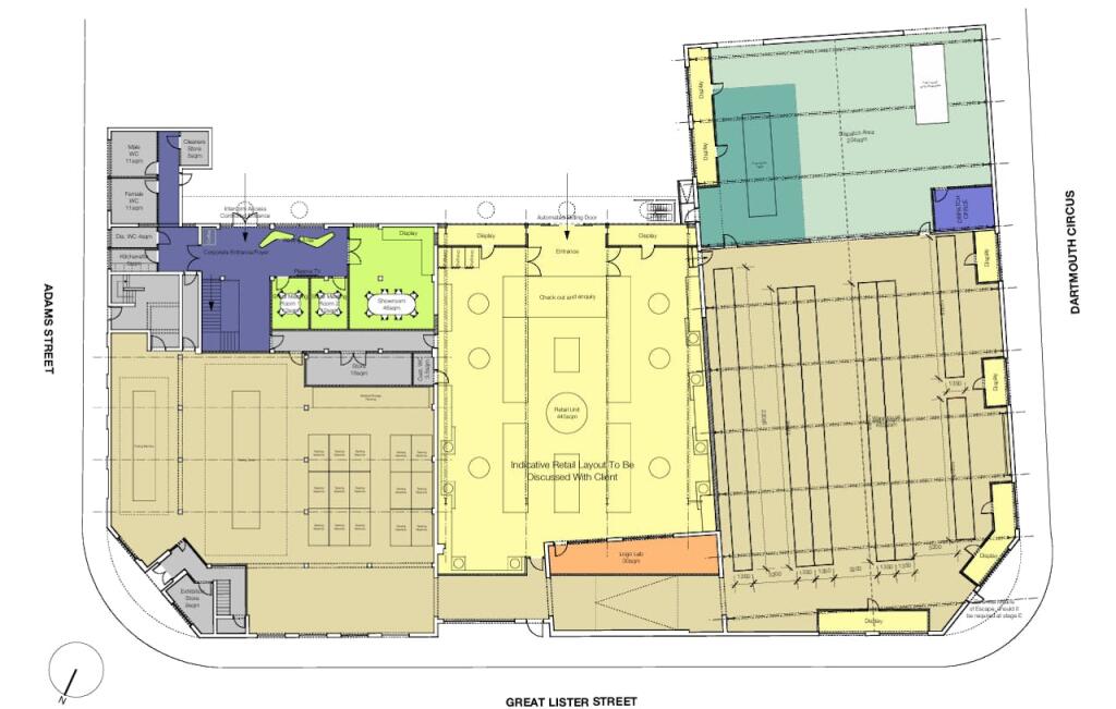
Full Description: DescriptionA rare opportunity to occupy the former Bodyguard Workwear and A B Fletchers Auto Site for only the second time in 114 years. This prominent retail warehouse and trade counter property enjoys excellent visibility along Dartmouth Middleway, benefitting from strong traffic flow along a busy arterial route and convenient access. The site is conveniently reached via Adams Street, which connects to both Great Lister Street and Heneage Street.Occupying approximately 1 acre, the site offers 60% coverage, with the remainder providing valuable parking and loading areas, ensuring ease of operations for a variety of businesses.The property features interconnecting warehouse accommodation of portal and steel truss construction, with pitched roofs. This includes open-span warehousing, low-level storage, and a dedicated retail showroom, offering flexible space to suit a range of needs.To the rear, a two-storey masonry building provides a ground-floor showroom, reception, kitchen, and WC facilities, while the upper level offers well-appointed office space, a boardroom, a canteen, and additional storage along the Great Lister Street elevation.With its strategic location, excellent visibility, and versatile accommodation, this property presents an ideal opportunity for a range of occupiers including, but not limited to, last mile logistics, trade counter and retail warehousing.LocationThe site occupies a prominent position on Dartmouth Middleway (A4540), at its intersection with Great Lister Street. Dartmouth Middleway provides direct access to Dartmouth Circus which in turn provides access to A38 (M) and junction 6 of the M6 Motorway at Spaghetti junction. The site is located opposite Birmingham Science Park and next door to Big Yellow Self Store and benefits from main arterial frontage with considerable traffic flow. Vehicular access is via Adams Street which can be accessed via Heneage Street or Great Lister Street.ServicesWe understand that all mains services are connected on, or adjacent to, the subject premises. The agent has not tested the suitability of the connections and recommends that all interested parties carry out their own investigations.What3wordsscore.rounds.zestVATAll prices quoted are exclusive of VAT, which may be payable.Legal CostsBoth parties are to bear their own legal and surveyor’s fees incurred during the transaction.ViewingStrictly via the sole agent Siddall Jones.
Location
Address
25 Great Lister Street, Birmingham, B7 4LS
City
Birmingham
Features and Finishes
Former Bodyguard Workwear and A B Fletchers Auto Site, 28,987 ft2 (approx.), Excellent Transport Links, Less than 1 mile to Spaghetti, 37,000 Daily Car Movements, Less than 1 mile from HS2 Terminal and proposed Birmingham City FC ground
Legal Notice
Our comprehensive database is populated by our meticulous research and analysis of public data. MirrorRealEstate strives for accuracy and we make every effort to verify the information. However, MirrorRealEstate is not liable for the use or misuse of the site's information. The information displayed on MirrorRealEstate.com is for reference only.