25 Marcus Road, Dingley Village VIC 3172
Property Details
3
1
House
Description
Property Details: • Type: House
• Bedrooms: 3 • Bathrooms: 1
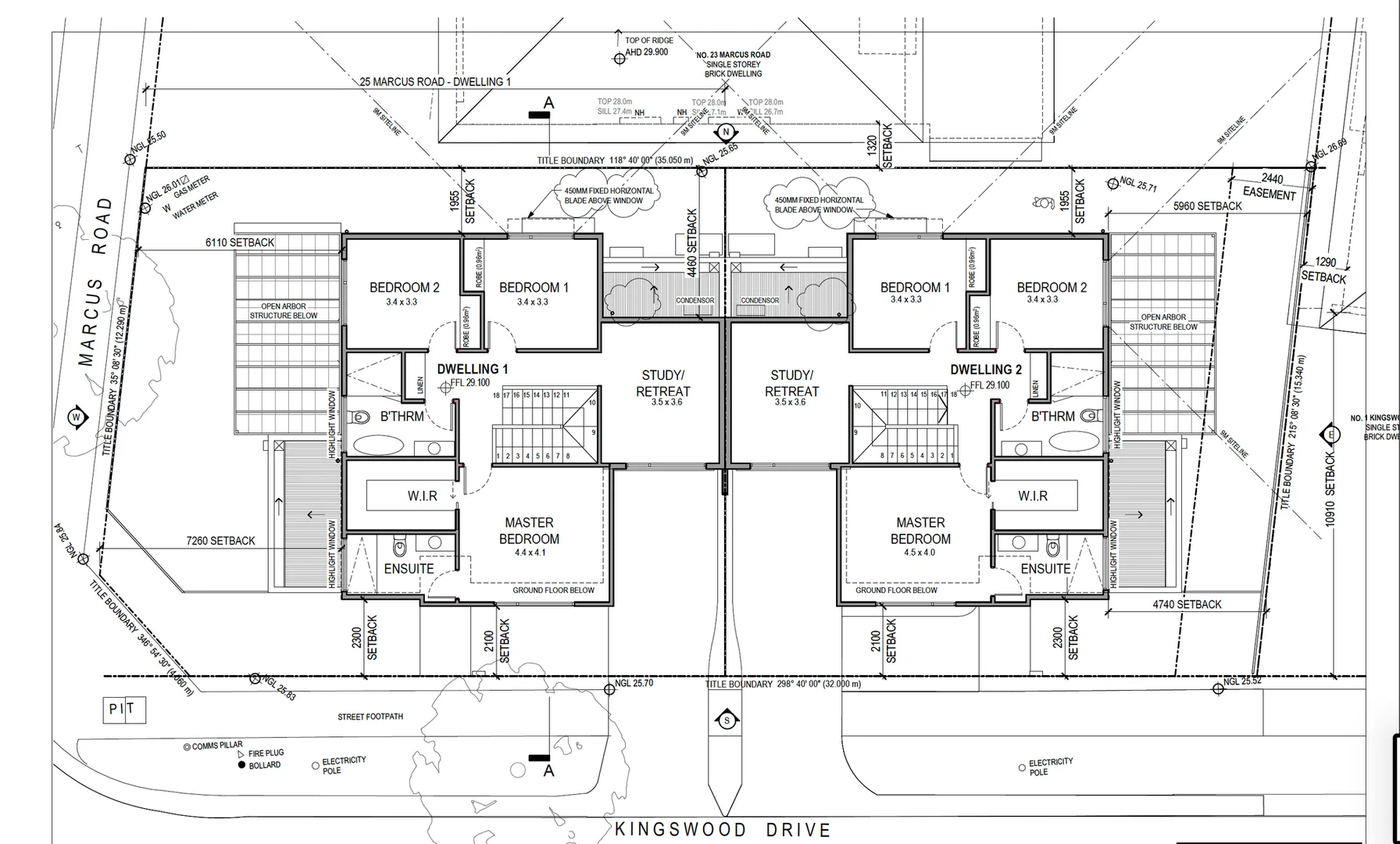
Description: It's Addressed: Astute investors, builders and developers will immediately appreciate the outstanding opportunity presented by this substantial corner allotment of approximately 530sqm (approx). Comfortable as is, the existing residence is complemented by approved plans and permits for a premium dual-occupancy development allowing you to fast-track your next project with confidence. Currently leased at $620 per week, the home delivers reliable holding income while you prepare for the next phase. The endorsed plans showcase two side-by-side, double-storey townhouses, each with its own street frontage. Designed to meet strong buyer demand, both residences will offer three bedrooms plus a study, generous open-plan living zones and a single lock-up garage. The existing home comprises a spacious lounge and dining domain, a well-appointed kitchen with gas cooking and dishwasher, three good sized bedrooms, a central bathroom with separate bath and shower, full laundry. Additional features include ducted heating, cooling, a swimming pool, large single garage and secure fencing throughout. Set within a highly sought-after, family-friendly pocket, the property is just moments from local shops, bus services, Costco and DFO. It is also within the catchment for Dingley Primary School and the coveted Parkdale Secondary College, close to golf courses and cafés, and only a short drive to the beautiful Bayside beaches. For more Real Estate in Dingley Village contact your Area Specialist. Note: Every care has been taken to verify the accuracy of the details in this advertisement, however, we cannot guarantee its correctness. Prospective purchasers are requested to take such action as is necessary, to satisfy themselves with any pertinent matters. Attached photos have been numbered from 1-18 with floorplan. Please ensure they are uploaded in this order. Will send photos in a few separate emails due to size, hopefully you can use them or resize them to upload. For more Real Estate in Dingley Village contact your Area Specialist. Note: Every care has been taken to verify the accuracy of the details in this advertisement, however, we cannot guarantee its correctness. Prospective purchasers are requested to take such action as is necessary, to satisfy themselves with any pertinent matters.
Location
Address
25 Marcus Road, Dingley Village VIC 3172
City
Dingley Village
Features and Finishes
None
Legal Notice
Our comprehensive database is populated by our meticulous research and analysis of public data. MirrorRealEstate strives for accuracy and we make every effort to verify the information. However, MirrorRealEstate is not liable for the use or misuse of the site's information. The information displayed on MirrorRealEstate.com is for reference only.