25 Park Street, Wilsonton QLD 4350
Property Details
4
2
House
Description
Property Details: • Type: House
• Bedrooms: 4 • Bathrooms: 2
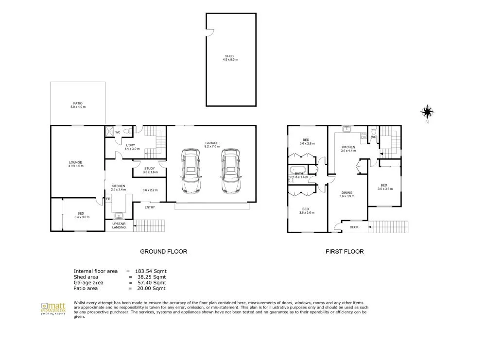
Description: Positioned at the peaceful rear of a family-friendly cul-de-sac and enjoying a picturesque outlook over Captain Cook Park, 25 Park Street presents an exceptional opportunity for families seeking space, flexibility and convenience. Set on a low-maintenance 501mò allotment, this beautifully refreshed residence has been thoughtfully designed to cater to modern family living. With the added benefit of dual living, side access to a powered single bay shed, and generous accommodation throughout, this is a home that truly adapts to your needs - whether that be extended family, teenagers, or the potential for additional income. Upstairs, light-filled open plan living forms the heart of the home, complemented by a well-appointed kitchen and spacious bedrooms. Downstairs provides further versatility with its own kitchen, bathroom and living space - a rare and valuable inclusion in today's market. Conveniently located within walking distance to local shops, schools and parklands, this is a rare opportunity that will appeal to owner-occupiers and investors alike. Four generous built-in bedrooms Ceiling fans Flexible dual living configuration Two kitchens (upstairs and downstairs) Light-filled open plan living spaces Accommodation for three vehicles Reverse cycle air-conditioning Large downstairs laundry Two separate toilets Dedicated office space 501mò low-maintenance allotment with side access Powered single bay shed Rainwater tank Outdoor gazebo for entertaining
Location
Address
25 Park Street, Wilsonton QLD 4350
City
Wilsonton
Features and Finishes
None
Legal Notice
Our comprehensive database is populated by our meticulous research and analysis of public data. MirrorRealEstate strives for accuracy and we make every effort to verify the information. However, MirrorRealEstate is not liable for the use or misuse of the site's information. The information displayed on MirrorRealEstate.com is for reference only.