258 London Road, St Albans, Hertfordshire, AL1 1TJ

GBP 1400000 For Sale

Property Details

Bedrooms

7

Property Type

Detached

Description

Property Details: • Type: Detached • Tenure: Freehold • Floor Area: N/A

Key Features: • To be offered on Wednesday 5 November • A substantial seven bedroom detached house • Approximately 2772 sq ft • Situated on a site of approximately 14291 sq ft • Presented in clean decorative order • Potential to extend (subject to requisite consents) • Development potential (subject to requisite consents) • Benefiting from off street parking and a large rear garden • Well located for the amenities of St Albans • Vacant

Location: • Nearest Station: N/A • Distance to Station: N/A

Agent Information: • Address: 33 Margaret Street London W1G 0JD

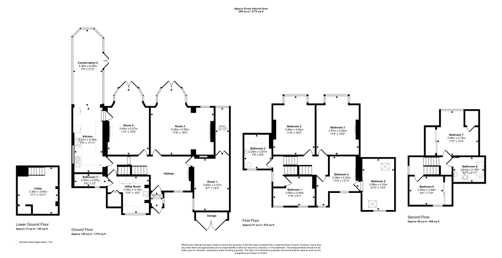
Full Description: StrapLineAuction Sale - 05/11/2025 - To book viewings, view the legal pack and register to bid please refer to the full sales particulars on the Savills Auctions websiteOf interest to developers, A substantial seven bedroom detached house of approximately 2772 sq ft situated on a site of approximately 14921 sq ft, presented in clean decorative order, with potential to extend (subject to requisite consents) and development potential (subject to requisite consents) benefiting from ample off street parking and a large rear garden, well located for the amenities of St Albans. Vacant.DescriptionA rarely available substantial seven bedroom detached house of approximately 2772 Sq Ft which retains many original features and great character situated on a plot of approximately 14291 sq ft.The property is located in St Albans, a highly sought after city which is situated approximately 20 miles North West of London and is well located for both the recreational and local amenities.Externally the house is approached via a substantial private gated driveway offering parking for multiple vehicles and there is a large garden that lies to the rear which provides space for further extension (subject to requisite consents)The property is offered with vacant possession.LocationThe property is located on London Road close to the junction for St Vincent Drive. Local amenities can be found on Hatfield Road, Victoria Street and in St Albans City Centre. The popular recreational amenities of Verulam Golf Club, Birklands Park and Verulamium Park are all easily accessible. TransportSt Alban's City - National Rail AccommodationLower Ground Floor - CellarGround Floor - Kitchen, Utility Room, Five Rooms, Conservatory, BathroomFirst Floor - Five Bedrooms, BathroomSecond Floor - Two Bedrooms, Bathroom

Location

Address

258 London Road, St Albans, Hertfordshire, AL1 1TJ

City

Hertfordshire

Features and Finishes

To be offered on Wednesday 5 November, A substantial seven bedroom detached house, Approximately 2772 sq ft, Situated on a site of approximately 14291 sq ft, Presented in clean decorative order, Potential to extend (subject to requisite consents), Development potential (subject to requisite consents), Benefiting from off street parking and a large rear garden, Well located for the amenities of St Albans, Vacant

Legal Notice

Our comprehensive database is populated by our meticulous research and analysis of public data. MirrorRealEstate strives for accuracy and we make every effort to verify the information. However, MirrorRealEstate is not liable for the use or misuse of the site's information. The information displayed on MirrorRealEstate.com is for reference only.

Real Estate Broker
Savills Auctions, London
Brokerage
Savills Auctions, London
Top Tags
large rear garden off street parking
Likes

0

Views

22

This website uses cookies to ensure you get the best experience. Learn more