3325 Eagle Bend Lane, Oxnard, CA 93036
Property Details
3
None
None
None
Description
Welcome to Victoria Estates, one of North Oxnard's most desirable guard-gated communities, surrounded by the lush greens of the River Ridge and Victoria Lakes golf courses.This inviting four-bedroom, three-bath home has so much to offer, from its light-filled interior to its prime location just two houses away from the community pool, spa, fitness center, and clubhouse. With newer flooring throughout and fresh paint, it feels bright, open, and move-in ready.Step inside and you'll be greeted by soaring ceilings and a beautiful curved staircase, the kind of architectural detail that makes a lasting impression. The spacious living and dining rooms flow easily into the large family room, which features a cozy fireplace, plantation shutters, and surround-sound wiring, a perfect place to relax or entertain.The adjoining kitchen is a chef's dream, with a center island and plenty of counter space. French doors open to the backyard, where you'll find ten fruit trees, apple, guava, plum, fig, and pomegranate, making this outdoor space both beautiful and productive.The floor plan includes one bedroom and full bath downstairs, ideal for guests or multi-generational living. Upstairs, the primary suite offers two walk-in closets and a spacious bath with a separate soaking tub, shower, and dual vanities. Two additional bedrooms complete the upper level.Life at Victoria Estates is all about enjoying the outdoors. Whether it's golfing, biking, hiking, or surfing, all in a perfect Mediterranean climate that lets you enjoy the sunshine year-round.And best of all, this community sits in one of Southern California's most affordable beachside areas, where you're just minutes from wide sandy beaches, Ventura Harbor, and The Collection at RiverPark -- a favorite local destination for shopping, dining, and entertainment, with options like Whole Foods, Larsen's Steakhouse, Lazy Dog, Yard House, and Cheesecake Factory.Come experience the best of coastal living, comfort, convenience, and community right here in beautiful Victoria Estates.
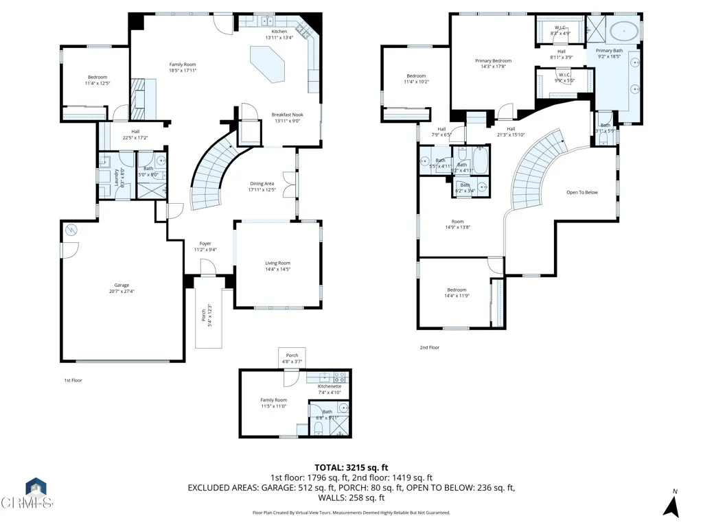
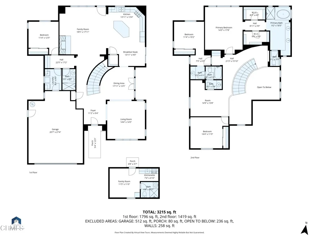
PROPERTY DETAILS: Square Feet: 3137 | Bathrooms: 3
INTERIOR FEATURES: • Cooling: Central Air • Heating: Central • Common Walls: No Common Walls • Fireplaces: Family Room • Security: 24 Hour Security, Security System, Smoke Detector(s), Gated with Guard, Gated Community, Fire Sprinkler System, Carbon Monoxide Detector(s)
EXTERIOR FEATURES: • Parking: 3 Garage Spaces, 3 Parking Spaces, Driveway, Attached Garage. • Exterior: Stucco • Patio: Patio • Roof: Tile • Pool Description: Community, Private • Spa: Community • Fence: Masonry • Additional Exterior/Lot Features: Patio
LISTING AGENT: Agent: Cheryl Aronson | Office: Coldwell Banker Realty | Phone: 8059011121 | Email: [email protected]
LISTING INFORMATION: MLS#: V1-33342 | Status: FOR SALE
Location
Address
3325 Eagle Bend Lane
City
Oxnard
Features and Finishes
Interior Features:
• Cooling: Central Air
• Heating: Central
• Common Walls: No Common Walls
• Fireplaces: Family Room
• Security: 24 Hour Security, Security System, Smoke Detector(s), Gated with Guard, Gated Community, Fire Sprinkler System, Carbon Monoxide Detector(s)
Exterior Features:
• Parking: 3 Garage Spaces, 3 Parking Spaces, Driveway, Attached Garage.
• Exterior: Stucco
• Patio: Patio
• Roof: Tile
• Pool Description: Community, Private
• Spa: Community
• Fence: Masonry
• Additional Exterior/Lot Features: Patio
Legal Notice
Our comprehensive database is populated by our meticulous research and analysis of public data. MirrorRealEstate strives for accuracy and we make every effort to verify the information. However, MirrorRealEstate is not liable for the use or misuse of the site's information. The information displayed on MirrorRealEstate.com is for reference only.