260 Alderley Street, Centenary Heights QLD 4350
Property Details
4
2
House
Description
Property Details: • Type: House
• Bedrooms: 4 • Bathrooms: 2
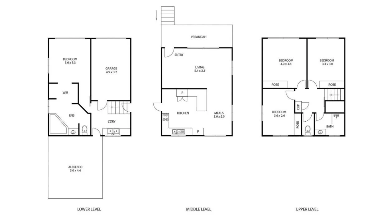
Description: Sitting on a generous fully fenced 733sqm block in the popular suburb of Centenary Heights is this impressive renovated split level home. As you enter the front doors you instantly appreciate what this home has to offer, with a well-designed layout making this an exceptional choice for any family. All rooms are perfectly positioned around the luxurious main bathroom. The spacious kitchen appointed with stainless steel appliances, stone benchtops & custom cabinetry also allows you to entertain with ease. The light filled living area features large glass sliding doors that lead to the front deck capturing the summer breezes. This property is set in a friendly neighbourhood on a large block with side access & showcases all this location has to offer and only moments from Centenary Heights High School, shops and Toowoomba's CBD, you'll love to call this place home. Features include: - Stylish 4 bedroom home - Recently renovated with modern finishes - Expansive 733sqm block fully fenced with side access - Immaculate presentation & large living space - Completed with quality fixtures & fittings - Reverse cycle air conditioning - Double garage with workshop space - Moments to Toowoomba's CBD - Close to Centenary Heights High School, shops and cafes Booking and Applying via RealWay We make it easy! Our aim is to make inspecting properties as easy as possible. Click on the "Request Inspection" section just below the price per week. This will allow you to book an inspection at the very next inspection time available. In the rare event one doesn't exist, it will automatically allow you to contact the office to request a time. When it comes to applications, our preferred method is 2Apply. If you already have an application ready in 2Apply our leasing team will provide the properties unique code after the inspection. If you haven't our team can provide application details on inspection. Our office aims to process all applications in less than 48 hours and make your journey as easy as possible. We do process sight unseen applications for people moving to the area who are unable to inspect, contact the office to do so. School-Aged Children? Please use this link for local school catchment areas http://www.qgso.qld.gov.au/maps/edmap
Location
Address
260 Alderley Street, Centenary Heights QLD 4350
City
Centenary Heights
Features and Finishes
None
Legal Notice
Our comprehensive database is populated by our meticulous research and analysis of public data. MirrorRealEstate strives for accuracy and we make every effort to verify the information. However, MirrorRealEstate is not liable for the use or misuse of the site's information. The information displayed on MirrorRealEstate.com is for reference only.