1325 Medford Road, Pasadena, CA

USD 749000 For Sale
MLS: P1-25130

Property Details

Description

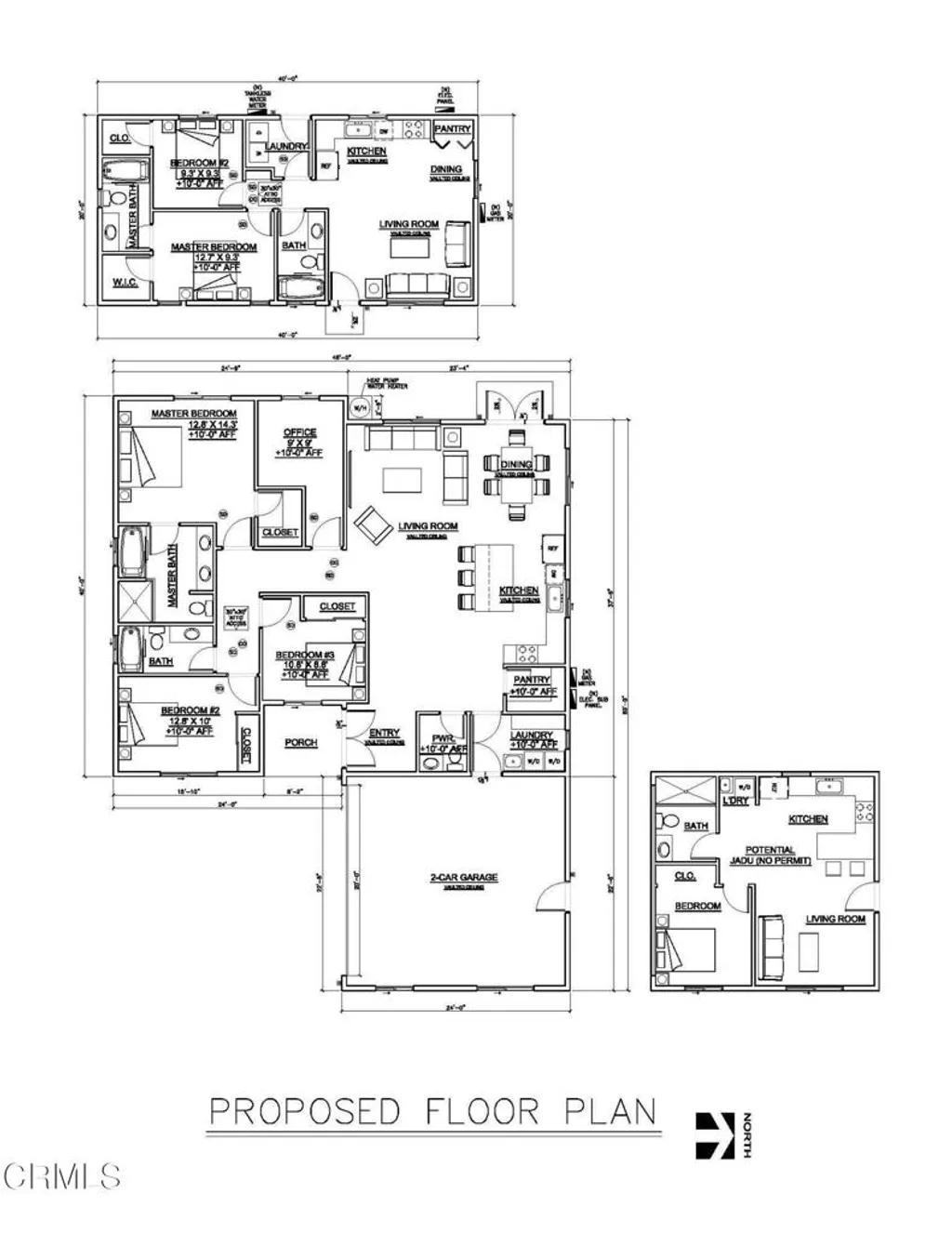
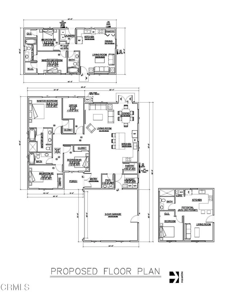
Rare opportunity to build your dream home in Upper Hastings Ranch with a fully cleared lot with Ready to Issue (RTI) permits for a single family home PLUS an ADU! Lot with panoramic views and nestled at the end of a quiet cul-de-sac in the highly sought-after Upper Hastings Ranch neighborhood. Approved permits enable you to build an 1800SF 3br + office / 2.5 ba single family home and an 800sf 2br / 2ba ADU. In addition, drawings are complete for a potential 1br/1ba JADU (not submitted for approval and no guarantees provided for approval). This is a rare opportunity to purchase a lot with RTI permits in an the prestigious Hastings Ranch area where the surrounding blocks are full of residences. Hastings Ranch is known for its charming community and community driven holiday light displays! The location is amazing with Hastings Ranch shopping and convenience to Eaton Canyon Golf Course, Caltech, Rose Bowl, Metro, nearby parks and farmers' market, and quick access to the 210 freeway.

PROPERTY DETAILS: Square Feet: 01596

EXTERIOR FEATURES: • Lot View: Valley • Zoning: PSR6 • Fence: Fenced

LISTING AGENT: Agent: Connie Chang | Office: Pacific Village Realty | Phone: 626-765-7440 | Email: [email protected]

LISTING INFORMATION: MLS#: P1-25130 | Status: FOR SALE

Location

Address

1325 Medford Road

City

Pasadena

Features and Finishes

Exterior Features:

• Lot View: Valley

• Zoning: PSR6

• Fence: Fenced

Legal Notice

Our comprehensive database is populated by our meticulous research and analysis of public data. MirrorRealEstate strives for accuracy and we make every effort to verify the information. However, MirrorRealEstate is not liable for the use or misuse of the site's information. The information displayed on MirrorRealEstate.com is for reference only.

Real Estate Broker
Connie Chang
Brokerage
Pacific Village Realty
Top Tags
ADU potential Caltech nearby
Likes

0

Views

21

This website uses cookies to ensure you get the best experience. Learn more