27 Hollingsworth Street
Property Details
1
2
Vacant
Description
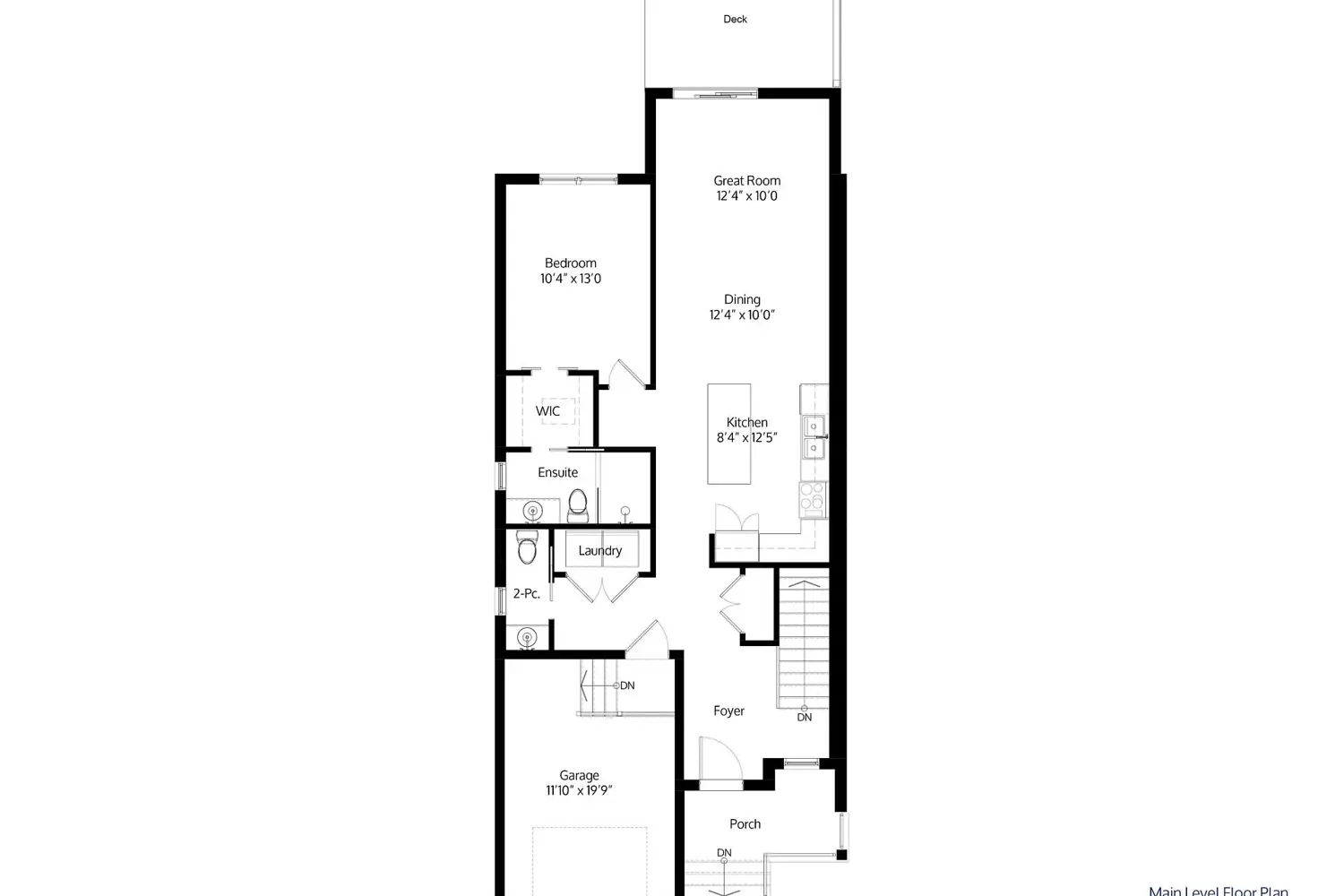
Introducing the LISBETH Model, a stunning modern farmhouse-style bungalow townhome in the picturesque new community of Eastfields. This thoughtfully designed exterior unit offers 1 bedroom and 1.5 bathrooms, blending contemporary elegance with rustic charm. Designed for easy living, it features a spacious single-car garage and a modern open-concept layout that connects the kitchen, dining, and living areas. Perfect for both entertaining and everyday comfort. Step outside to your private back deck, ideal for relaxing and enjoying the outdoors. The primary suite includes a generous walk-in closet and a luxurious 3-piece ensuite, while a 2-piece bath and in-unit laundry add convenience and functionality. Nestled in the serene and welcoming community of Colborne and built by prestigious local builder Fidelity Homes. This home comes packed with quality finishes including: Maintenance-free, EnergyStar-rated Northstar vinyl windows with Low-E-Argon glass; 9-foot smooth ceilings on the main floor; Designer Logan interior doors with sleek black Weiser hardware; Craftsman-style trim package with 5 1/2 baseboards and elegant casings around windows and doors; Premium cabinetry; Quality vinyl plank flooring; Moen matte black water-efficient faucets in all bathrooms; Stylish, designer light fixtures throughout. Offering 7 Year TARION New Home Warranty. MOVE-IN APRIL 2026!
Location
Address
27 Hollingsworth Street
City
Lynn
Features and Finishes
None
Legal Notice
Our comprehensive database is populated by our meticulous research and analysis of public data. MirrorRealEstate strives for accuracy and we make every effort to verify the information. However, MirrorRealEstate is not liable for the use or misuse of the site's information. The information displayed on MirrorRealEstate.com is for reference only.