929 E Foothill Boulevard Unit 15, Upland, CA 91786

USD 175000 For Sale
MLS: IG25280024

Property Details

Bathrooms

2

Description

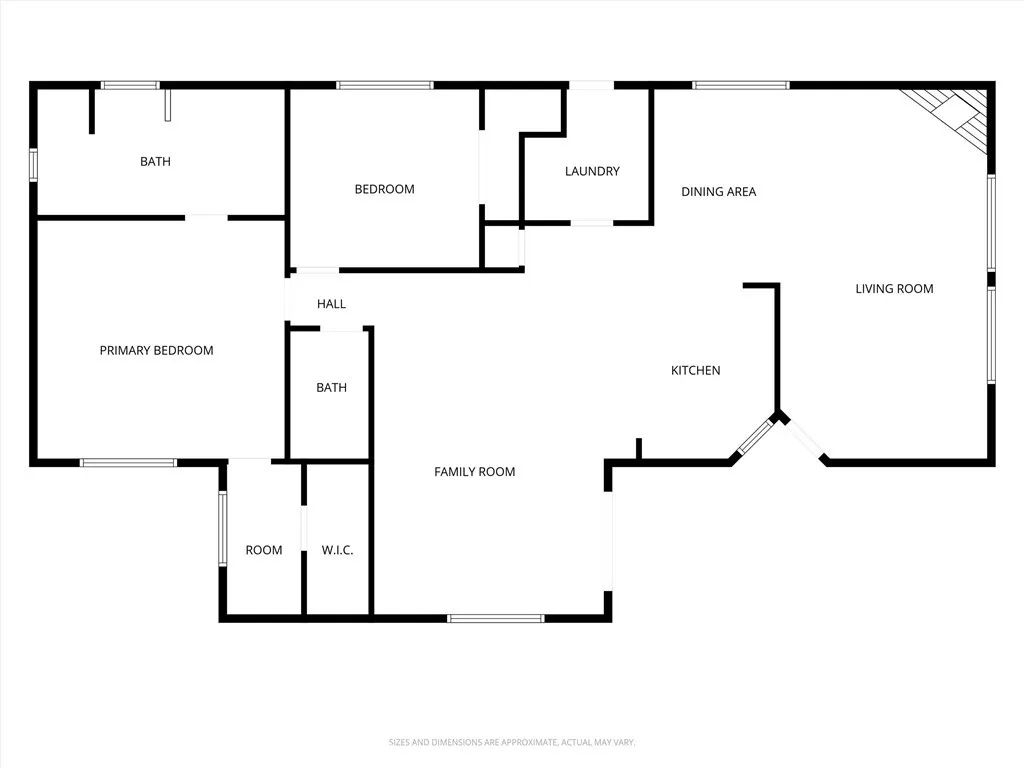
AMAZING UPGRADES to this H-U-G-E Triple Wide home, featuring a NEW ROOF in 2022, Home Re-Leveled Sept 2025, NEW Flooring, Bathroom lights come on when you walk in (so cool!!!), Xtra King Size Primary Bedroom with a separated walk-in Dressing Area with Vanity AND a Walk-In Closet. The Primary bathroom screams LUXURY !!! Enter through the Wide HANDICAPPED Bathroom Door, A "Roll in shower" OR a shower large enough for TWO!! Double sinks, special lighting, built-in storage for linens, towels, etc. One of the top of the line Golden West Homes, featured a built-in China hutch, FIREPLACE, Vaulted & Beamed ceilings in the Living Room, PLUS the home was RELEVELED SEPT 2025! Lovely workable kitchen in a semi circular design with built-in dishwasher, disposal, built-in oven with ample room on either side of the cooktop for the "Chef" in the family who loves to spread out over a two-tiered Breakfast bar. So many wonderful features in this IMMACULATE & SPACIOUS HOME! Put this one on you list as a "MUST SEE". (Ser.# GW1CALSB5056A/B/C) Space rent only $1381.47/mo, subject to verification with Park Management. Financing available. Professional pictures will be taken soon!

PROPERTY DETAILS: Square Feet: 1680 | Bathrooms: 2

INTERIOR FEATURES: • Appliances: Range, Built-In Range, Dishwasher, Disposal, Gas Oven, Gas Range, Range Hood, Water Heater • Flooring: Tile, Laminate, Carpet • Cooling: Central Air • Heating: Forced Air, Central, Fireplace • Doors/Windows: Blinds, Screens • Accessibility: Baths, Therapeutic Whirlpool • Security: Carbon Monoxide Detector(s), Smoke Detector(s) • Additional Interior Features: Walk-In Closet(s), Beamed Ceilings, Built-in Features, Cathedral Ceiling(s)

EXTERIOR FEATURES: • Parking: 2 Carport Spaces, 2 Parking Spaces, Attached Carport, Paved. • Exterior: Masonite • Patio: Patio, Covered, Porch • Roof: Composition • Pool Description: Community • Lot View: City • Fence: Fenced, Block • Additional Exterior/Lot Features: Awning(s), Workshop, Shed(s), Patio, Porch

LISTING AGENT: Agent: Nancy Turner | Office: REALTY ONE GROUP ROADS | Phone: 9095540884 | Email: [email protected]

LISTING INFORMATION: MLS#: IG25280024 | Status: FOR SALE

Location

Address

929 E Foothill Boulevard Unit 15

City

Upland

Features and Finishes

Interior Features:

• Appliances: Range, Built-In Range, Dishwasher, Disposal, Gas Oven, Gas Range, Range Hood, Water Heater

• Flooring: Tile, Laminate, Carpet

• Cooling: Central Air

• Heating: Forced Air, Central, Fireplace

• Doors/Windows: Blinds, Screens

• Accessibility: Baths, Therapeutic Whirlpool

• Security: Carbon Monoxide Detector(s), Smoke Detector(s)

• Additional Interior Features: Walk-In Closet(s), Beamed Ceilings, Built-in Features, Cathedral Ceiling(s)

Exterior Features:

• Parking: 2 Carport Spaces, 2 Parking Spaces, Attached Carport, Paved.

• Exterior: Masonite

• Patio: Patio, Covered, Porch

• Roof: Composition

• Pool Description: Community

• Lot View: City

• Fence: Fenced, Block

• Additional Exterior/Lot Features: Awning(s), Workshop, Shed(s), Patio, Porch

Legal Notice

Our comprehensive database is populated by our meticulous research and analysis of public data. MirrorRealEstate strives for accuracy and we make every effort to verify the information. However, MirrorRealEstate is not liable for the use or misuse of the site's information. The information displayed on MirrorRealEstate.com is for reference only.

Real Estate Broker
NANCY TURNER
Brokerage
REALTY ONE GROUP ROADS
Likes

0

Views

19

This website uses cookies to ensure you get the best experience. Learn more