28/19 Russell Street, Everton Park QLD 4053
Property Details
3
2
Townhouse
Description
Property Details: • Type: Townhouse
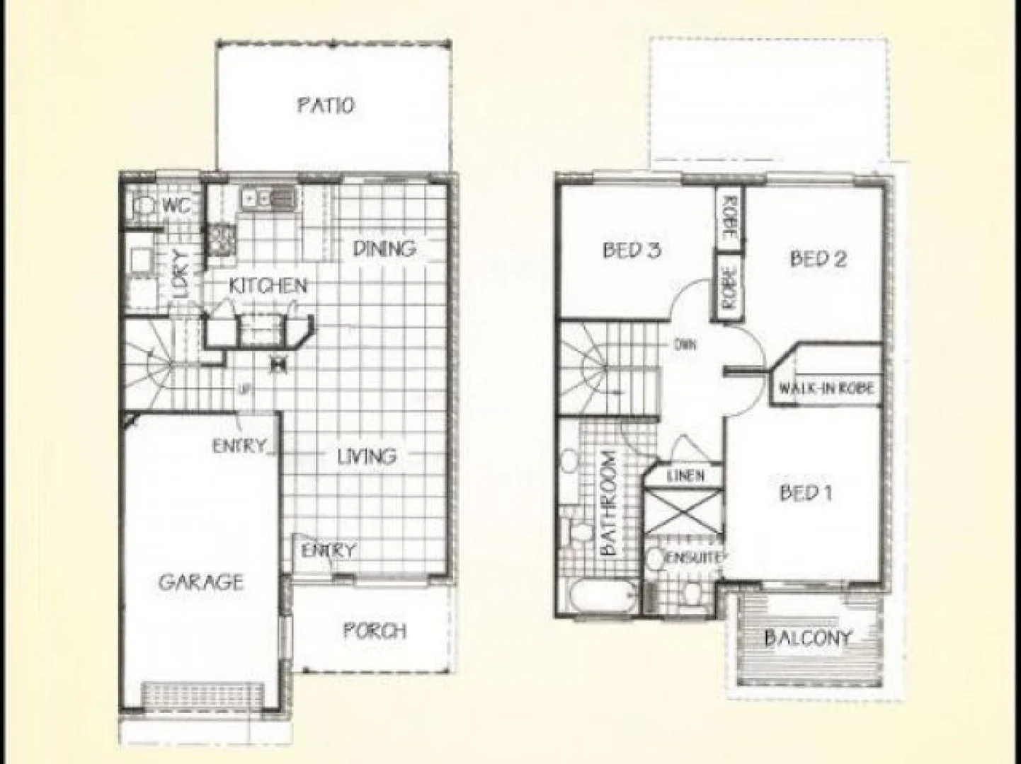
• Bedrooms: 3 • Bathrooms: 2
Description: Welcome to this beautifully presented 3-bedroom townhouse, perfectly positioned to offer a blend of comfort, style, and convenience. This modern home features 2.5 bathrooms, a large open plan living and dining area, and is ideally located just minutes away from schools, shops, and a vibrant dining precinct. Cool down in the pool in the complex. Key Features: 3 Spacious Bedrooms: The air-conditioned master bedroom boasts an ensuite and WIR while the two additional bedrooms have built in wardrobes and double sized, offering plenty of room for family or guests. All bedrooms have overhead fans. 2.5 Bathrooms: Modern fixtures and finishes ensure you'll have the perfect space to relax or refresh, with the convenience of an additional powder room downstairs for guests. Living & Dining Area: Enjoy an airy open plan airconditioned living and dining space, perfect for both relaxation and entertaining. Modern Kitchen: The fully equipped kitchen features quality appliances, plenty of storage, and a breakfast bar, making it the perfect place for meal prep. Private Outdoor Space: Step outside to your own private courtyard, ideal for outdoor dining or enjoying some quiet time in the fresh air. Prime Location: Situated close to top-rated schools, local shops, and a variety of dining options, this townhouse offers unparalleled convenience. Everything you need is just a short walk or drive away. Additional Features: Extra-long single garage, air conditioning, ceiling fans, and contemporary finishes throughout. Whether you're a growing family, a couple, or downsizing, this townhouse has everything you need. Don't miss the opportunity to make this lovely property your next home. Contact us today to arrange a private inspection! 3 Large Bedrooms Airconditioned Lounge/Dining/Kitchen and Master Bedroom Pool in Complex Walking distance to schools & shops Photos are indicative of the complex ID:21172849
Location
Address
28/19 Russell Street, Everton Park QLD 4053
City
Everton Park
Legal Notice
Our comprehensive database is populated by our meticulous research and analysis of public data. MirrorRealEstate strives for accuracy and we make every effort to verify the information. However, MirrorRealEstate is not liable for the use or misuse of the site's information. The information displayed on MirrorRealEstate.com is for reference only.