28 Tricourt Grove, Riverton WA 6148
Property Details
5
3
House
Description
Property Details: • Type: House
• Bedrooms: 5 • Bathrooms: 3
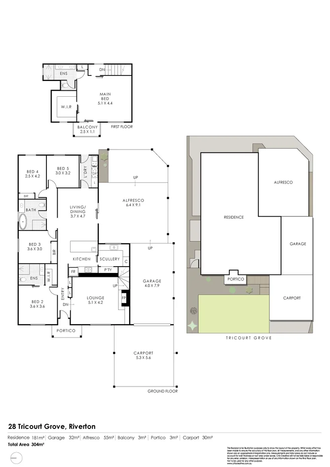
Description: This exquisite two storey Rossmoyne High School zoned residence has been extensively renovated without compromise. The property is situated in a convenient location close to Riverton Primary School and major amenities including Riverton Forum, Leisureplex, library and public transport. Stepping inside, you are welcomed into a spacious light filled front lounge. The gas heater keeps this space cozy during winter months. Central to the home is the renovated kitchen well appointed with quality appliances and stone bench top. Tuck your kitchen mess inside the sizeable scullery room. Adjoining the kitchen is the family cum dining room which opens out to the patio. Parents can retreat to their first floor master bedroom for privacy. The renovated ensuite features double vanity and double shower. A ground floor guest master bedroom with ensuite would be perfect for visitors or live in older parents. Three other well proportioned minor bedrooms are located on the ground floor. Plantation shutters adorn the windows of various bedrooms. The renovated common bathroom feature full height wall tiling and frameless shower. Three toilets are available for added convenience. The backyard is low maintenance to suit the working parents' busy lifestyle. The large pitched patio lets you entertain your friends in style. The property is kept secure by an alarm system and CCTV. A wonderful balance of modern home living, low maintenance and convenience awaits you here. Highlights include: Within Rossmoyne Senior High School & Riverton Primary School zones Great location close to Riverton Primary School, Riverton Library, Riverton Forum, Leisureplex, public transport & parks Recently repainted High ceilings Spacious lounge Stunning renovated kitchen well appointed with quality appliances including Ilve gas cook top & Bosch dishwasher; stone bench top & generous cabinet storage space Scullery Newly renovated laundry features stone bench top Three toilets Large 1st floor master bedroom features balcony, large walk-in wardrobe & renovated ensuite with double shower & double vanity Ground floor guest master bedroom features walk-in wardrobe & renovated ensuite with full height wall tiling & hard surface vanity top Three spacious minor bedrooms Ground floor common bathroom features framless shower & full height wall tiling LED downlights Four split air con units Plantation shutters in various rooms Hybrid floorboards to bedrooms & living areas Gas instantaneous hot water system Rendered exterior walls Custom skylight to family room Colourbond boundary fences Large pitched pergola with timber decking Low maintenance landscaped yards with new lawns; pergola with new roofing sheets for outdoor living Security alarm & CCTV Automatic bore reticulation to easy care yards Double carport & single enclosed carport with automatic door 422 sqm survey strata block (no strata levies) with 16.68 m wide frontage approx Disclaimer: All information contained has been prepared for advertising and marketing purposes only and is not intended to form part of any contract. Whilst every effort is made for the accuracy of these information, which is believed to be correct, neither the Agent nor the client nor servants of both, guarantee their accuracy and accept no responsibility for the results of any actions taken, or reliance placed upon this document. Interested parties should make independent enquiries and rely on their personal judgement to satisfy themselves in all respects. Property Code: 1992
Location
Address
28 Tricourt Grove, Riverton WA 6148
City
Riverton
Features and Finishes
None
Legal Notice
Our comprehensive database is populated by our meticulous research and analysis of public data. MirrorRealEstate strives for accuracy and we make every effort to verify the information. However, MirrorRealEstate is not liable for the use or misuse of the site's information. The information displayed on MirrorRealEstate.com is for reference only.