15600 Lake Ridge Rd, Lake Elsinore, CA 92530

USD 550000 For Sale
MLS: SW25267509

Property Details

Bathrooms

2

Description

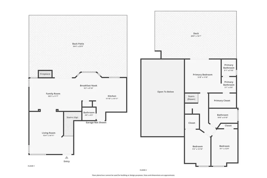
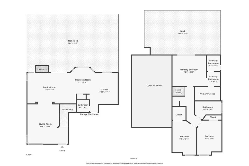
ABSOLUTELY BREATHTAKING VIEWS from this updated and remodeled home. Unobstructed Panoramic views of lake and mountains- very serene and private backyard situated on a corner lot. Home has 3 bedrooms (all upstairs), 3 bathrooms and just under 1,400 sq ft of living space. The home has been updated and remodeled, inside and out. Kitchen has been remodeled with slate gray cabinets and Quartz countertops, pantry area, new brushed nickel faucet and sink, and new stainless steel appliances. Living room at the front of the home is a great space for relaxing or entertaining. Family room with brick mantle fireplace, wood or gas, opens to the dining room and kitchen. Attached two car garage allows for direct kitchen access.Upstairs you will find the primary bedroom suite is spacious with a sliding glass door that leads to a massive deck. Enjoy the gorgeous lake and moutain views from your private area. You will also find an ensuite bathroom with dual sinks, and tub/ shower combo, and large walk in closet. 2 additional spacious bedrooms, and bathroom with tub/ shower combo complete the second story. A few of the new upgrades include: new light fixtures, plumbing fixtures, new shower/ tub inserts, freshly painted inside and out, ceiling fans throughout, window coverings, new luxury vinyl flooring throughout with new carpet in the bedrooms. Large backyard with multiple areas to sit and enjoy the lake and mountain views while entertaining or relxing underneath the large covered patio cover. Low taxes and NO HOA. Great location- close to shopping, schools, and parks. Convienent access to Ortega Hwy for easy communte to OC or San Diego and 15 freeway if you are traveling to San Diego or LA. Come check out this darling home- completely remodeled-- ready for you to move right in.

PROPERTY DETAILS: Square Feet: 1384 | Bathrooms: 2

INTERIOR FEATURES: • Appliances: Dishwasher, Disposal, Gas Oven, Gas Range • Flooring: Vinyl, Carpet • Cooling: Central Air, Ceiling Fan(s) • Heating: Central • Common Walls: No Common Walls • Doors/Windows: Sliding Doors, Blinds, Low Emissivity Windows • Fireplaces: Family Room • Security: Carbon Monoxide Detector(s), Security Lights, Smoke Detector(s) • Additional Interior Features: Built-in Features, Ceiling Fan(s), Granite Counters, Recessed Lighting

EXTERIOR FEATURES: • Parking: 2 Garage Spaces, 4 Parking Spaces, Covered, Deck, Garage, Attached Garage. • Exterior: Stucco • Patio: Patio, Covered, Deck • Roof: Tile • Pool Description: None • Spa: None • Lot View: Hill, Lake, Mountain, Panoramic, Water, Other, City, Canyon • Fence: Wood • Structural Condition: Updated/Remodeled • Additional Exterior/Lot Features: Lighting, Landscaped, Patio, Deck Corner Lot, Corners Marked, Landscaped, Rectangular Lot, Level

LISTING AGENT: Agent: Jessica Small | Office: Allison James Estates & Homes | Phone: 9517572112 | Email: [email protected]

LISTING INFORMATION: MLS#: SW25267509 | Status: FOR SALE

Location

Address

15600 Lake Ridge Rd

City

Lake Elsinore

Features and Finishes

Interior Features:

• Appliances: Dishwasher, Disposal, Gas Oven, Gas Range

• Flooring: Vinyl, Carpet

• Cooling: Central Air, Ceiling Fan(s)

• Heating: Central

• Common Walls: No Common Walls

• Doors/Windows: Sliding Doors, Blinds, Low Emissivity Windows

• Fireplaces: Family Room

• Security: Carbon Monoxide Detector(s), Security Lights, Smoke Detector(s)

• Additional Interior Features: Built-in Features, Ceiling Fan(s), Granite Counters, Recessed Lighting

Exterior Features:

• Parking: 2 Garage Spaces, 4 Parking Spaces, Covered, Deck, Garage, Attached Garage.

• Exterior: Stucco

• Patio: Patio, Covered, Deck

• Roof: Tile

• Pool Description: None

• Spa: None

• Lot View: Hill, Lake, Mountain, Panoramic, Water, Other, City, Canyon

• Fence: Wood

• Structural Condition: Updated/Remodeled

• Additional Exterior/Lot Features: Lighting, Landscaped, Patio, Deck Corner Lot, Corners Marked, Landscaped, Rectangular Lot, Level

Legal Notice

Our comprehensive database is populated by our meticulous research and analysis of public data. MirrorRealEstate strives for accuracy and we make every effort to verify the information. However, MirrorRealEstate is not liable for the use or misuse of the site's information. The information displayed on MirrorRealEstate.com is for reference only.

Real Estate Broker
Jessica Small
Brokerage
Allison James Estates & Homes
Likes

0

Views

0

This website uses cookies to ensure you get the best experience. Learn more