289 5th Con Rd E
CAD 1,098,000
For Sale
MLS: 40683412
Property Details
Bedrooms
3
Bathrooms
1
Property Type
Single Family Residence
Description
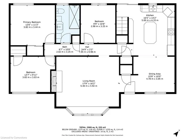
MLS#: 40683412 Type: Single Family Residence Living Space: 1230 sqft Year Built: 1955 Parking Spaces: 11 Garage Spaces: 1 Basement: Full, Unfinished Swimming Pool: No Lot Size: 100 x 522 Annual Taxes: $7292.75
Location
Address
289 5th Con Rd E
City
Waterdown
Legal Notice
Our comprehensive database is populated by our meticulous research and analysis of public data. MirrorRealEstate strives for accuracy and we make every effort to verify the information. However, MirrorRealEstate is not liable for the use or misuse of the site's information. The information displayed on MirrorRealEstate.com is for reference only.