-298 Southmead Road, Westbury-on-trym, Bristol

GBP 275000 For Sale

Property Details

Property Type

Land

Description

Property Details: • Type: Land • Tenure: N/A • Floor Area: N/A

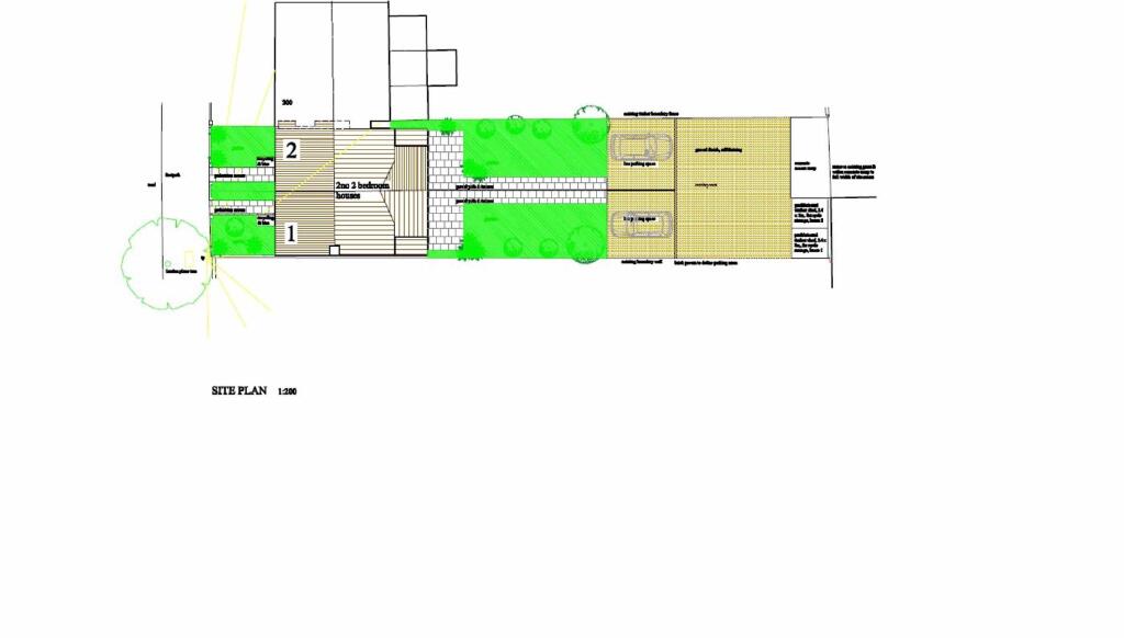
Key Features: • Southmead Road • development opportunity • planning granted for 2 x two bed houses • parking & gardens • site is 136ft x 30ft6 maximum • viewings by appointment only

Location: • Nearest Station: Filton Abbey Wood Station • Distance to Station: 1.6 miles

Agent Information: • Address: 73 Westbury Hill, Bristol, BS9 3AD

Full Description: Ocean Westbury on Trym offer this development site with planning in place located in a fantastic position ideal for Southmead Hospital, Westbury on Trym Village and Henleaze Road shops.

Overview

Currently used for car storage the site has Planning permission (18/04666/F) granted 25.1.2019. It is classed as an active site. The site is for two x two bedrooms houses withe two bathrooms, downstairs WC, living room, separate kitchen, rear access & parking. Viewings are direct with Ocean and by appointment only.

Outside

The site measures 136ft Maximum x 30ft6 maximum.

Location

This is an ideal location for Southmead Hospital (450 metres) & local schools including Badocks community primary.

We think...

A perfect project for anyone looking for an investment to rent out near the super hospital just 450 metres away.BrochuresBrochure 1

Location

Address

-298 Southmead Road, Westbury-on-trym, Bristol

City

Bristol

Features and Finishes

Southmead Road, development opportunity, planning granted for 2 x two bed houses, parking & gardens, site is 136ft x 30ft6 maximum, viewings by appointment only

Legal Notice

Our comprehensive database is populated by our meticulous research and analysis of public data. MirrorRealEstate strives for accuracy and we make every effort to verify the information. However, MirrorRealEstate is not liable for the use or misuse of the site's information. The information displayed on MirrorRealEstate.com is for reference only.

Real Estate Broker
Ocean, Westbury on Trym
Brokerage
Ocean, Westbury on Trym
Top Tags
Likes

0

Views

80

This website uses cookies to ensure you get the best experience. Learn more