29A Central Avenue, Scarborough QLD 4020
Property Details
5
2
House
Description
Property Details: • Type: House
• Bedrooms: 5 • Bathrooms: 2
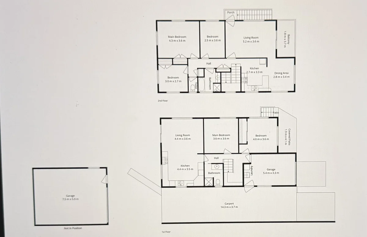
Description: Two storey dual living house is located in the heart of Scarborough's golden triangle, just a short walk away from Southern Cross Primary School and Trade School North Brisbane. Downstairs features a large open-plan kitchen, dining, and living room with access to backyard. There are two large bedrooms, with the larger one air-conditioned for comfort. There's also a large bathroom and a single garage with a laundry space. The upper level has a second living room with direct access to a verandah that's perfect for enjoying the lovely Scarborough sea breeze. The upper dining room and kitchen are also open-plan, and the second bathroom has individual shower and bath facilities, as well as separate toilet. There are three large bedrooms, with the master bedroom being particularly generous in size. Two bedrooms are air-conditioned. The renewed white good appliances have already been installed in both kitchen areas, so you can start cooking right away! This house is ideal for intergenerational living, and it also offers the perfect opportunity to enjoy a sea-change lifestyle with easy access to the Scarborough boat clubs and marina, Morgan's Seafood, and local cafes and restaurants. You'll also have many coastal walking paths and bikeways, where you can enjoy breathtaking sunsets over the bay and Glasshouse Mountains. Rental properties with dual living potential like this one are quite rare. Don't miss out on this amazing opportunity!
Location
Address
29A Central Avenue, Scarborough QLD 4020
City
Scarborough
Legal Notice
Our comprehensive database is populated by our meticulous research and analysis of public data. MirrorRealEstate strives for accuracy and we make every effort to verify the information. However, MirrorRealEstate is not liable for the use or misuse of the site's information. The information displayed on MirrorRealEstate.com is for reference only.