29A Norman Street, Condell Park NSW 2200
Property Details
7
4
House
Description
Property Details: • Type: House
• Bedrooms: 7 • Bathrooms: 4
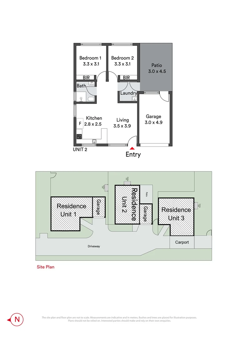
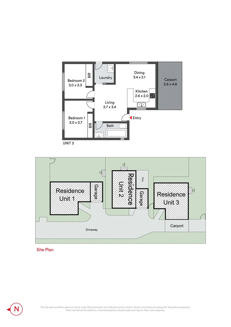
Description: An exceptional investment opportunity in the heart of Condell Park, this versatile property comprises three separately appointed dwellings on one parcel of land, offering immediate rental income and long-term growth potential. Designed to appeal to a broad tenant demographic, each residence provides low-maintenance living, functional layouts and modern inclusions that support strong occupancy rates and consistent returns. Whether you're looking to expand your portfolio, secure a multi-income asset or capitalise on future growth, this property presents a strategic addition in a high-demand location. 1/29A This newly renovated three-bedroom townhouse features three generous bedrooms, all complete with built-in wardrobes, and a modern open-plan living and dining area that flows seamlessly into a contemporary kitchen. Comfort is assured year-round with air conditioning, while practical inclusions such as an internal laundry, lock-up parking and a private backyard add further value. With its fresh renovation and family-friendly layout, this property is ideal for attracting long-term tenants and maximising rental returns. Currently leased: $780.00 PW 2/29A This modern two-bedroom villa offers excellent tenant appeal. Both bedrooms include built-in wardrobes, while the open-plan living and dining area creates a light and functional space complemented by a contemporary kitchen. A neat and tidy bathroom, internal laundry, split-system air conditioning and lock-up parking enhance everyday convenience. Positioned as part of a multi-dwelling site, this property provides a solid opportunity for consistent rental income with minimal upkeep. Currently leased: $640.00 PW 3/29A This comfortable two-bedroom villa fitted with built-in wardrobes, and the open-plan living and dining area offers a practical and inviting layout. The property also includes an internal laundry, split-system air conditioning and a single carport. Currently leased: $450.00 PW Ideally positioned in a highly sought-after pocket of Condell Park, this property enjoys exceptional access to everyday amenities and family conveniences. Comprising three dwellings on the same parcel of land, it offers investors the benefit of diversified rental income while maintaining simplicity and ease of management. Condell Park Shopping Village is just 600 metres away, while Condell Park Public School (650 metres), First Grammar Condell Park (850 metres) and multiple childcare facilities are all within easy reach. Local bus stops and O'Brien Park are close by, enhancing lifestyle and connectivity, and Bankstown CBD is only a short drive away, offering a wide array of retail, dining, transport and commercial options. -Combined rental income of $1,870 PW -Combined Water Rates: $833.65 Approx. per quarter -Council Rates: $1,001,00 Approx. per quarter -Total of 802sqm (approx.)
Location
Address
29A Norman Street, Condell Park NSW 2200
City
Condell Park
Features and Finishes
None
Legal Notice
Our comprehensive database is populated by our meticulous research and analysis of public data. MirrorRealEstate strives for accuracy and we make every effort to verify the information. However, MirrorRealEstate is not liable for the use or misuse of the site's information. The information displayed on MirrorRealEstate.com is for reference only.