3/49 Bilyana Street, Balmoral QLD 4171
Property Details
2
2
Apartment / Unit / Flat
Description
Property Details: • Type: Apartment / Unit / Flat
• Bedrooms: 2 • Bathrooms: 2
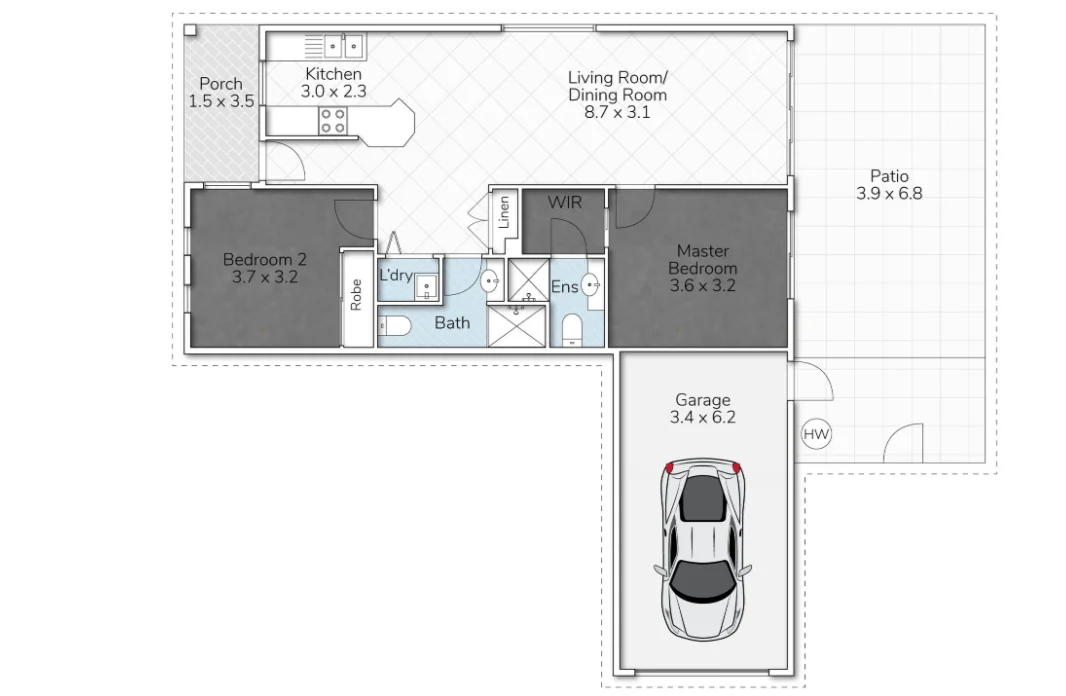
Description: Enjoy the perfect balance of privacy, space, and convenience in this exceptional ground-floor residence, ideally positioned just moments from the vibrant lifestyle hubs of Oxford Street and Hawthorne Road. Tucked away at the rear of a well-maintained complex, this home offers a peaceful and exclusive setting with its own private gated entrance, secure complex access, and no upstairs neighbours. Designed for effortless living, the thoughtfully designed open-plan layout flows seamlessly from the kitchen through to the living and dining areas, extending out to a covered patio. Large windows and expansive glass doors invite in an abundance of natural light, while opening onto a fully fenced courtyard with high fencing for added privacy-perfect for relaxing or entertaining in a beautifully landscaped setting. Property Features: • Ground-floor position with no stairs • Private gated entrance within a secure complex • Expansive, fully fenced low maintenance courtyard with high fencing for privacy • Large covered outdoor patio ideal for entertaining • Thoughtfully designed open-plan living, dining, and kitchen layout • Large windows and glass sliding doors for abundant natural light • Well-appointed kitchen with ample storage • Two spacious bedrooms, both with built-in robes • Large master bedroom with courtyard access, walk-in robe, and private ensuite • Internal European laundry • Split-system air-conditioning and ceiling fans • Secure single garage plus ample visitor parking Located in a highly sought-after pocket, this home places you within easy reach of Oxford Street's cafés, restaurants, and boutiques, as well as Hawthorne Park, scenic riverwalks, and the Hawthorne Ferry Terminal. With excellent local schools and convenient transport options nearby, this property offers a relaxed lifestyle with everything you need right at your doorstep. Applying Online / Disclaimer: It's important to register your interest in any upcoming and advertised open homes or inspections. Failing to register may result in not being informed of any unforeseen or unplanned changes to inspection times. Once you register you will automatically receive an email which includes a link to Apply Online via 2Apply. We have in preparing this advertisement used our best endeavours to ensure the information contained is true and accurate but accept no responsibility and disclaim all liability in respect to any errors, omissions, inaccuracies, or misstatements contained. Prospective tenants should make their own enquiries to verify the information contained in this advertisement.
Location
Address
3/49 Bilyana Street, Balmoral QLD 4171
City
Balmoral
Legal Notice
Our comprehensive database is populated by our meticulous research and analysis of public data. MirrorRealEstate strives for accuracy and we make every effort to verify the information. However, MirrorRealEstate is not liable for the use or misuse of the site's information. The information displayed on MirrorRealEstate.com is for reference only.