3 Bed Flat, Morgans Walk, SW11, N1 7GU
Property Details
3
2
Flat
Description
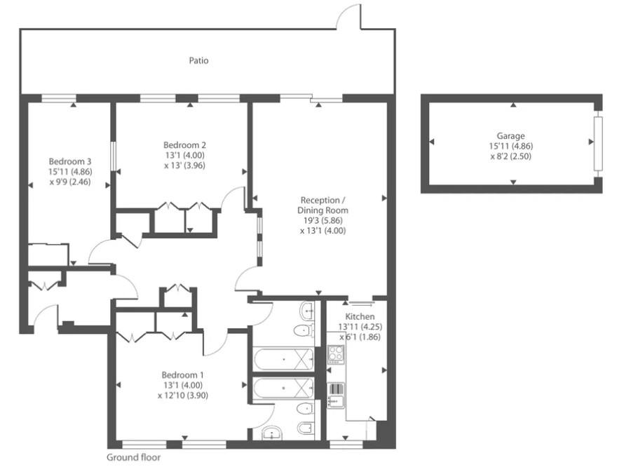
Description A rare opportunity to rent a luxurious ground floor 3 bedroom, 2 bathroom 1,100 sq ft apartment with generous outdoor space in one of Battersea’s most desirable riverside communities — just minutes from Chelsea, Battersea Square and Battersea Park. Situated within the prestigious gated Morgan’s Walk development – a private 10-acre riverside development in North Battersea next to Battersea Bridge and the river Thames – this beautifully presented three-bedroom ground floor apartment offers luxury living with a rare private garden, garage and additional off-street parking. The apartment, which is presented furnished or unfurnished, consists of a spacious reception room with large patio doors offering an abundance of natural light and access directly to the private garden and the well maintained communal gardens beyond. There is a separate galley kitchen fully equipped with modern appliances, a large master bedroom with quadruple fitted wardrobe and ensuite, a large second bedroom with triple fitted wardrobe and a smaller double bedroom with fitted double wardrobe. A separate modern family bathroom with bathtub and overhead shower completes the description. This property would ideally suit a couple or young family looking for a modern apartment in a safe convenient environment with a low maintenance garden and lots of parking. Key features: Three bedrooms Two bathrooms 1,100 sq ft South Westerly facing garden Walking distance to Chelsea, Battersea Park, Battersea Square Fully fitted kitchen with integrated appliances Master bedroom with fitted wardrobes and en-suite Two further double bedrooms with fitted wardrobes Contemporary family bathroom Secure, gated riverside community Private garden + beautifully maintained communal gardens Gas central heating Garage + Off-street parking City living in tranquil surroundings This property is available furnished or unfurnished. Perfect for a family or professionals. Wandsworth Council Tax Band: FCurrently £1,474 per year.EPC: C Location Morgans Walk is a superbly located development next to Battersea Bridge and within easy reach of the King's Road and Chelsea. There are many local shops and restaurants both on Battersea Bridge Road and the beautiful Battersea Square. Battersea Park with its 200 acres of recreational space and parkland is close by as is the exciting and continued development of Battersea Power Station. A stylish and tranquil ‘village’ retreat in the heart of London. Just a 5-minute walk to Chelsea via Battersea Bridge, and moments from Battersea Park, Battersea Village, the River Thames, and King’s Road, this sought-after riverside setting provides easy access to excellent shops, restaurants, cafés, and transport links across London. Transport There are excellent transport links from Battersea Bridge Road to Victoria, Sloane Square, South Kensington, Piccadilly Circus and Clapham Junction. Clapham Junction railway station has excellent train links to Waterloo, Victoria, Gatwick and the South of England. - Video walk-through available on request - Council Tax: Wandsworth band F (currently only £1,474 per year) - Holding Deposit: £1,000 - Security Deposit: £4,000 Viewings We will be conducting all viewings directly - so please get in touch if this sounds like the kind of apartment you are looking for. References will be required along with a £4,000 security deposit. Thanks for your interest and we look forward to hearing from you.
--- Property Details --- Type: Flat Bedrooms: 3 Bathrooms: 2 Rent: £3,750 per month Deposit: £1,000 Size: 1,100 sq ft Furnished: Unfurnished EPC Rating: C Available From: 27 April, 2026 Minimum Tenancy: 6 Months Bills Included: Broadband View Offers Postcode: N1 7GU Listed By: OpenRent Landlord
Location
Address
3 Bed Flat, Morgans Walk, SW11, N1 7GU
City
N1 7GU
Features and Finishes
Unfurnished, EPC: C, 1,100 sq ft, Available: 27 April, 2026, Min tenancy: 6 Months, Bills: Broadband View Offers
Legal Notice
Our comprehensive database is populated by our meticulous research and analysis of public data. MirrorRealEstate strives for accuracy and we make every effort to verify the information. However, MirrorRealEstate is not liable for the use or misuse of the site's information. The information displayed on MirrorRealEstate.com is for reference only.