3 Bed Terraced House, Pillans Square, EH6, N1 7GU
Property Details
3
3
House
Description
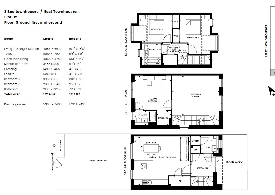
Stunning 3 bedroom, 3 storey townhouse in the Ropeworks development with garden & amazing first floor living space overlooking a landscaped park & Arthur's Seat. The house also offers an open plan kitchen & dining area on the ground floor opening onto the large, very private garden. A fabulous living room on the first floor overlooking a park and views beyond. Also features 3 bathrooms & plenty of storage. Two minute walk to the huge Leith Links park & a national cycle route. 6-7 minute walk to Leith Walk, public transport & the Leith tram stops. Walking distance also to the wonderful cafes, restaurants and boutiques in Leith Shore. Plenty of on street parking and EV charging opposite. (Floor plans and illustrative pictures are courtesy of developer brochure (Teague Group)). On site or video viewing to take place around 11 and/or 18 April 2026.
--- Property Details --- Type: House Bedrooms: 3 Bathrooms: 3 Rent: £2,400 per month Deposit: £3,323.07 Furnished: Unfurnished EPC Rating: B Available From: 04 May, 2026 Bills Included: Broadband View Offers Postcode: N1 7GU Listed By: OpenRent Landlord
Location
Address
3 Bed Terraced House, Pillans Square, EH6, N1 7GU
City
N1 7GU
Features and Finishes
Unfurnished, EPC: B, Available: 04 May, 2026, Bills: Broadband View Offers
Legal Notice
Our comprehensive database is populated by our meticulous research and analysis of public data. MirrorRealEstate strives for accuracy and we make every effort to verify the information. However, MirrorRealEstate is not liable for the use or misuse of the site's information. The information displayed on MirrorRealEstate.com is for reference only.