3 Landseer, North Cheriton, Templecombe, Somerset, BA8 0AS

GBP 209500 For Sale

Property Details

Bedrooms

3

Property Type

End of Terrace

Description

Property Details: • Type: End of Terrace • Tenure: Freehold • Floor Area: N/A

Key Features: • Three bedroom end of terrace house • Rear garden • In need of modernisation • Well located for the amenities of South Cheriton.

Location: • Nearest Station: N/A • Distance to Station: N/A

Agent Information: • Address: 33 Margaret Street London W1G 0JD

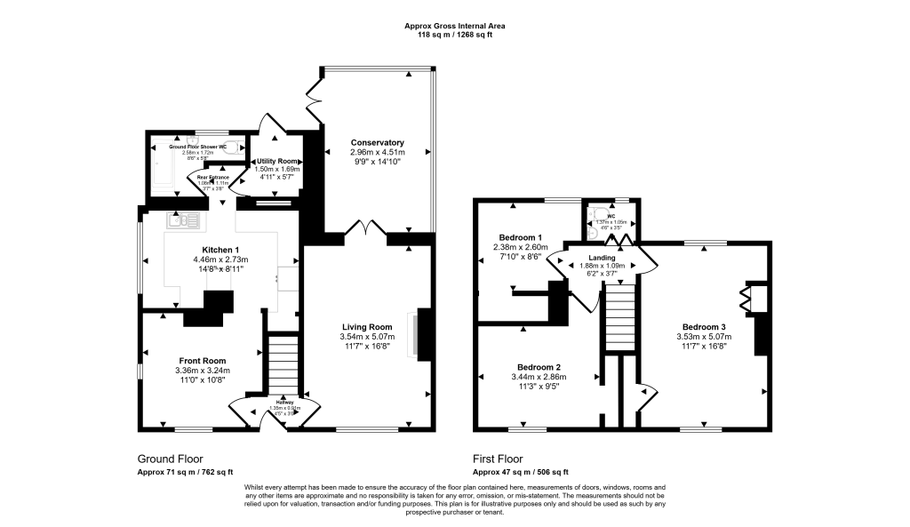
Full Description: StrapLineAuction Sale - 19/08/2025 - To book viewings, view the legal pack and register to bid please refer to the full sales particulars on the Savills Auctions websiteA three bedroom end of terrace house, benefitting from a rear garden, in need of modernisation, well located for the amenities of South Cheriton.LocationThe property can be accessed via Blackacre Hill.A selection of local amenities are available in South Cheriton with a broader range to be found in Wincanton.Nearby major roads include the A303.TransportNational Rail - Templecombe (South Western)AccommodationGround Floor - Reception Room/Kitchen, Reception Room, Shower Room/WC, Utility Room, ConservatoryFirst Floor - Three Bedrooms, WC

Location

Address

3 Landseer, North Cheriton, Templecombe, Somerset, BA8 0AS

City

Somerset

Features and Finishes

Three bedroom end of terrace house, Rear garden, In need of modernisation, Well located for the amenities of South Cheriton.

Legal Notice

Our comprehensive database is populated by our meticulous research and analysis of public data. MirrorRealEstate strives for accuracy and we make every effort to verify the information. However, MirrorRealEstate is not liable for the use or misuse of the site's information. The information displayed on MirrorRealEstate.com is for reference only.

Real Estate Broker
Savills Auctions, London
Brokerage
Savills Auctions, London
Top Tags
rear garden
Likes

0

Views

24

This website uses cookies to ensure you get the best experience. Learn more