3 Mitta Court, Corio VIC 3214
Property Details
3
1
House
Description
Property Details: • Type: House
• Bedrooms: 3 • Bathrooms: 1
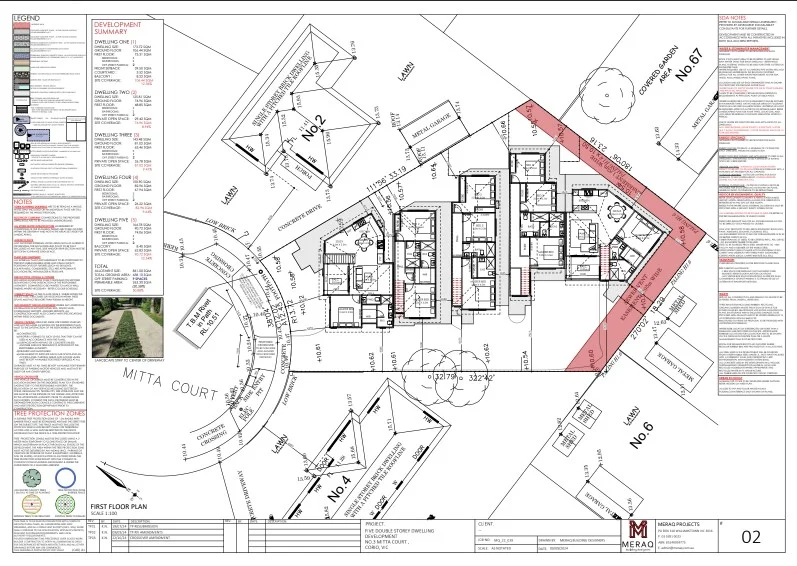
Description: This three bedroom, one bathroom home is in original condition and presents an incredible opportunity for investors, developers, or first home buyers. Set on a generous approximately 861m² allotment, the property already comes with approved plans and permits for five double storey dwellings a rare and valuable chance to develop in a growing Corio location. The existing home offers three bedrooms, a central bathroom, and comfortable living spaces, providing rental income potential while you finalise your development plans. Positioned in a thriving neighbourhood, the property is within walking distance to Corio Shopping Centre, local cafes, and public transport, as well as being close to great schools and amenities, ensuring strong future appeal for homeowners and investors alike. Key Features: Approx. 861m² block with approved plans and permits for five double storey dwellings Three bedroom, one bathroom home in original condition Incredible opportunity for investors, developers, or first home buyers Walking distance to Corio Shopping Centre, local cafes, and public transport Close to great schools, shops, and local amenities Expected rental return for existing dwelling around $410 per week ($21,320 per annum)
Location
Address
3 Mitta Court, Corio VIC 3214
City
Corio
Features and Finishes
None
Legal Notice
Our comprehensive database is populated by our meticulous research and analysis of public data. MirrorRealEstate strives for accuracy and we make every effort to verify the information. However, MirrorRealEstate is not liable for the use or misuse of the site's information. The information displayed on MirrorRealEstate.com is for reference only.