301/88 Dow Street, Port Melbourne VIC 3207
Property Details
1
1
House
Description
Property Details: • Type: House
• Bedrooms: 1 • Bathrooms: 1
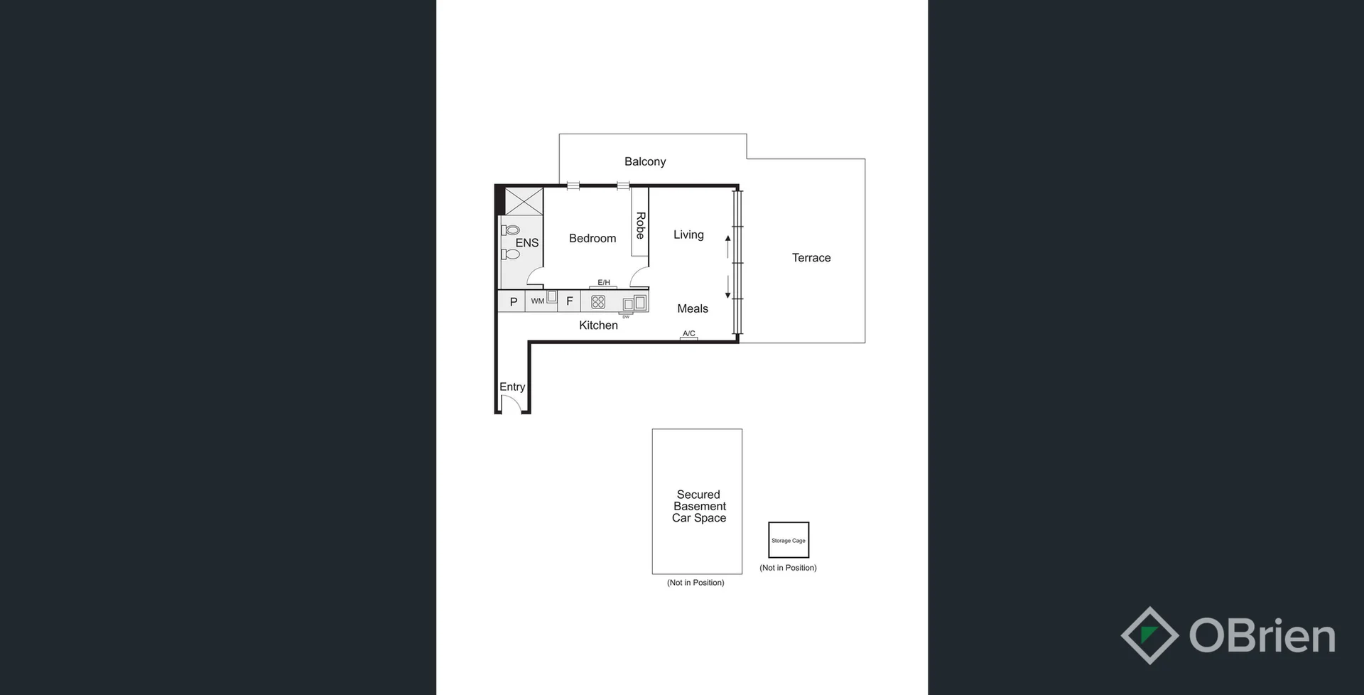
Description: Enjoy spectacular views of the city skyline and Port Phillip Bay from this stylish one-bedroom apartment, perfectly positioned on the third floor of a secure boutique building. Featuring an impressive 40sqm (approx.) north-west facing terrace, this home offers exceptional indoor-outdoor living - ideal for entertaining, relaxing in the sun, or enjoying the sweeping outlook. Inside, the light-filled open plan living and dining area flows effortlessly to the expansive alfresco space. The sleek stone kitchen is beautifully appointed with Bosch appliances and mirrored splashbacks, while the generous bedroom features near new carpet and built-in robes. A fully tiled ensuite, European laundry, and full-height sliding glass doors complete the well-designed layout. Additional features include Spotted Gum flooring, reverse cycle air conditioning, ample hallway storage, double blinds for privacy and light control, secure intercom entry, lift access, secure undercover parking, and a storage cage. Ideally located in the heart of Port Melbourne, just moments from Bay Streets vibrant cafes and restaurants, Lagoon Reserve, Gasworks Arts Park, the beach, and public transport. A lifestyle opportunity not to be missed! Contact us today to book an inspection! ------------- Please Note: An initial 12-month lease applies to this property. To submit an application, you must register for and attend an open for inspection to receive the application code. If you are unable to attend in person, you may send someone on your behalf or contact our office to discuss alternative arrangements. Photo identification is required for entry to all inspections. Please also note that photography and videography are strictly prohibited, as these are privately owned properties. Disclaimer: OBrien Real Estate has prepared this information in good faith based on information provided by third parties and has taken reasonable care to ensure its accuracy. However, OBrien Real Estate cannot guarantee the accuracy or completeness of the information. Prospective purchasers and renters should make their own enquiries to verify the information contained herein.
Location
Address
301/88 Dow Street, Port Melbourne VIC 3207
City
Port Melbourne
Features and Finishes
None
Legal Notice
Our comprehensive database is populated by our meticulous research and analysis of public data. MirrorRealEstate strives for accuracy and we make every effort to verify the information. However, MirrorRealEstate is not liable for the use or misuse of the site's information. The information displayed on MirrorRealEstate.com is for reference only.