2775 E Amberley Privado, Ontario, CA 91762
Property Details
3
None
None
None
Description
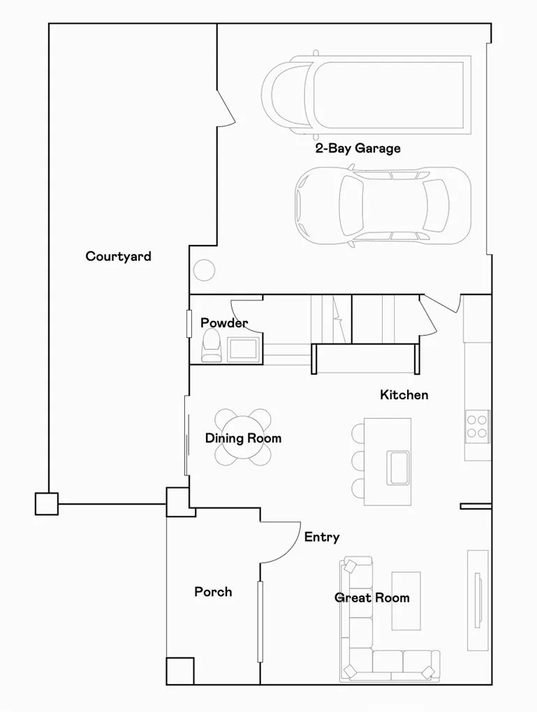
NEW CONSTRUCTION! Ready of Quick Move-in! Includes Upgraded Flooring! The first floor of this two-story home shares an open layout between the kitchen, dining room and Great Room, making entertaining easy. Upstairs is a versatile flex space that can double as an additional shared living space and office, depending on the household's needs. There are two secondary bedrooms on the second floor, along with a luxe owner's suite with an en-suite bathroom and walk-in closet, giving residents a spa-like experience. The kitchen features white miami vena quartz countertops. Ashbrook is a collection of new condominiums for sale in the Falloncrest master-planned community in Ontario, CA. Enjoy a multitude of onsite amenities, such as a social clubhouse, sparkling swimming pool, parks, picnic areas and a tot lot for the little ones to enjoy. A variety of shopping options are within close reach at Ontario Mills and Victoria Gardens. Or, enjoy some leisure at local spots such as San Antonio Winery or El Prado Golf Course.
PROPERTY DETAILS: Square Feet: 1654 | Bathrooms: 3
INTERIOR FEATURES: • Appliances: Range, Built-In Range, Dishwasher, Disposal, Microwave • Cooling: Central Air • Heating: Central • Common Walls: 1 Common Wall • Fireplaces: None • Energy: Solar • Security: Carbon Monoxide Detector(s), Smoke Detector(s) • Additional Interior Features: Kitchen Island, Walk-In Closet(s), Breakfast Bar, Open Floorplan, Pantry, Recessed Lighting
EXTERIOR FEATURES: • Parking: 2 Garage Spaces, 2 Parking Spaces, Garage, Attached Garage. • Exterior: Stucco, Frame • Patio: Patio, Porch • Roof: Tile • Pool: InGround • Pool Description: Association, In Ground • Structural Condition: New Construction • Additional Exterior/Lot Features: Patio, Porch Level
LISTING AGENT: Agent: Todd Myatt | Office: Century 21 Masters | Phone: 9513265001 | Email: [email protected]
LISTING INFORMATION: MLS#: SW25275670 | Status: FOR SALE
Location
Address
2775 E Amberley Privado
City
Ontario
Features and Finishes
Interior Features:
• Appliances: Range, Built-In Range, Dishwasher, Disposal, Microwave
• Cooling: Central Air
• Heating: Central
• Common Walls: 1 Common Wall
• Fireplaces: None
• Energy: Solar
• Security: Carbon Monoxide Detector(s), Smoke Detector(s)
• Additional Interior Features: Kitchen Island, Walk-In Closet(s), Breakfast Bar, Open Floorplan, Pantry, Recessed Lighting
Exterior Features:
• Parking: 2 Garage Spaces, 2 Parking Spaces, Garage, Attached Garage.
• Exterior: Stucco, Frame
• Patio: Patio, Porch
• Roof: Tile
• Pool: InGround
• Pool Description: Association, In Ground
• Structural Condition: New Construction
• Additional Exterior/Lot Features: Patio, Porch Level
Legal Notice
Our comprehensive database is populated by our meticulous research and analysis of public data. MirrorRealEstate strives for accuracy and we make every effort to verify the information. However, MirrorRealEstate is not liable for the use or misuse of the site's information. The information displayed on MirrorRealEstate.com is for reference only.