3068 Emperor Drive
Property Details
4
4
Owner
Description
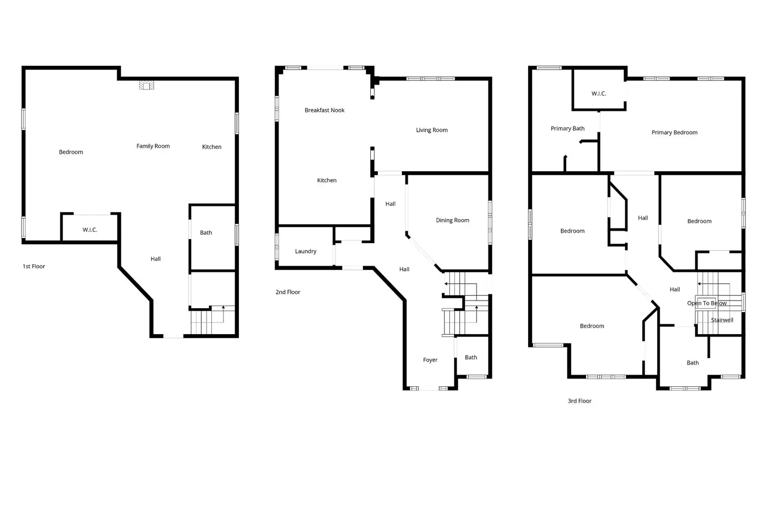
Welcome to 3068 Emperor Drive, located in one of Orillia's most desirable family neighbourhoods. Set on a quiet, tree-lined street, this spacious 4-bedroom, 4-bathroom home offers over 2,200 sq ft above grade plus a fully finished basement, delivering the ideal blend of comfort, flexibility, and location.From the moment you arrive, the home's curb appeal and thoughtful layout stand out. The main level features a bright, open-concept design with a generous living room, formal dining area, and a well-appointed kitchen complete with rich cabinetry, stainless steel appliances, and a large breakfast bar for casual meals. Large windows allow for plenty of natural light, creating an inviting and functional main floor space for both daily living and entertaining. A convenient main-floor laundry room adds everyday practicality.Upstairs, the primary suite offers a peaceful retreat with a walk-in closet and private ensuite. Three additional family-sized bedrooms share a full bath, offering ample space for children, guests, or a dedicated home office.The finished lower level brings added value and versatility. It includes a self-contained, studio-style apartment with a private entrance, open kitchen and living area, and a full bath. This space is perfect for in-laws, guests, or multi-generational living.Step outside to enjoy a fully fenced backyard that is ideal for kids, pets, and warm-weather gatherings. A custom deck provides the perfect space for summer barbecues. Located near Lakehead University, parks, schools, shopping, and Highway 11, this is a turnkey opportunity in a prime Orillia location. Recent upgrades include a new dishwasher and washer, offering peace of mind and convenience for the next owner.
Location
Address
3068 Emperor Drive
City
Orillia
Features and Finishes
None
Legal Notice
Our comprehensive database is populated by our meticulous research and analysis of public data. MirrorRealEstate strives for accuracy and we make every effort to verify the information. However, MirrorRealEstate is not liable for the use or misuse of the site's information. The information displayed on MirrorRealEstate.com is for reference only.