31-32 Market Centre, Crewe, Cheshire, CW1 2NG
Property Details
1,729 sq ft
Description
Property Details: • Type: 1,729 sq ft • Tenure: N/A • Floor Area: N/A
Key Features: • Prime market town centre investment opportunity • Let to Clear Pharmacy (Crewe) Ltd for a term of 10 years expiring 09/03/2024 • Passing rent - £20,000 per annum • Situated directly opposite Market Centre Car Park & Iceland • Freehold - offers based on £229,5000, equating to a NIY of 8.5%
Location: • Nearest Station: Crewe Station • Distance to Station: 0.9 miles
Agent Information: • Address: 1st Floor 75-77 Colmore Row Birmingham B3 2AP
Full Description: For Sale by private treaty.
Offers based on £229,500 are invited for the Freehold interest, reflecting a net initial yield of 8.5% after usual purchaser's costs.
Freehold retail investment opportunity
The property comprises a ground floor commercial property, and extends to 1,728 sq. ft. (160.59 sq m) The property trades as a pharmacy and is situated in a prominent position at the pedestrian access route to the main shopping centre.
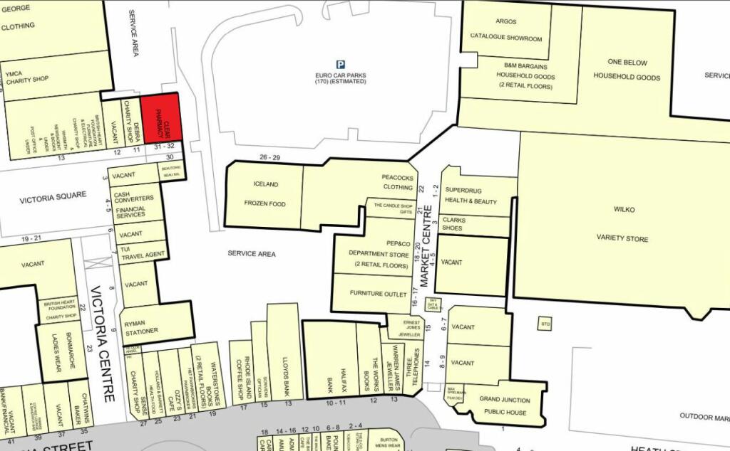
Location The property occupies a prominent position opposite the Market shopping centre main car park in central Crewe, which is an affluent market town situated in the District of Crewe and Nantwich, and the County of Cheshire. The property is located on Victoria Street fronting Market Centre, which is situated within the core retail area of Crewe Town Centre, at the junction of the prime pedestrianised retail thorough fares of Victoria Street and Market Street. Nearby occupiers include Superdrug, River Island, Lloyds Bank & Iceland Foods.
Market Centre is the prime scheme in the town centre and adjoins a 170 space car park. It is the hub of the local community, where almost 100,000 people visit every week - to meet friends and family, to eat, drink, work and for leisure.
Crewe lies 24 miles south-east of Chester and 36 miles south-west of Manchester and is one of the largest train stations in the Northwest and a major interchange station on the West Coast main line. Crewe has been proposed as the site of a transport hub for the new HS2 line. Crewe town centre is home to several large employers, including AstraZeneca, Bentleys Motors, Barclays Bank and Network Rail. There are also several business parks around town which host light industry and offices.
Tenure Freehold, subject to the existing tenancy.
Tenancy The property is let in its entirety to Let to Clear Pharmacy (Crewe) Ltd for a term of 10 years, from 10/03/2014, expiring 09/03/2024. The passing rent is £20,000 per annum with scope to increase at the relevant opportunity.
TENANT PROFILE Founded in 2005, Clear Pharmacy now comprises 35 branches across the UK. They offer a range of NHS pharmacy services including the Minor Ailments Scheme, Smoking Cessation Programme and Medicine Use Reviews.
VAT We are advised that VAT is applicable to the purchase price, although its is anticipated that the sale will be treated as a TOGC.
Business Rates The rateable value is £45,500. This is not the amount payable.
EPC Available upon request.
Legal Costs Each party is to be responsible for their own legal costs that may be incurred in this transaction.
Anti Money Laundering In accordance with anti-money laundering regulations, two forms of identity and confirmation of the source of funding will be required from the successful purchaser.
Location
Address
31-32 Market Centre, Crewe, Cheshire, CW1 2NG
City
Cheshire East
Features and Finishes
Prime market town centre investment opportunity, Let to Clear Pharmacy (Crewe) Ltd for a term of 10 years expiring 09/03/2024, Passing rent - £20,000 per annum, Situated directly opposite Market Centre Car Park & Iceland, Freehold - offers based on £229,5000, equating to a NIY of 8.5%
Legal Notice
Our comprehensive database is populated by our meticulous research and analysis of public data. MirrorRealEstate strives for accuracy and we make every effort to verify the information. However, MirrorRealEstate is not liable for the use or misuse of the site's information. The information displayed on MirrorRealEstate.com is for reference only.