31 Olsen Circuit, Kallangur QLD 4503
Property Details
4
2
House
Description
Property Details: • Type: House
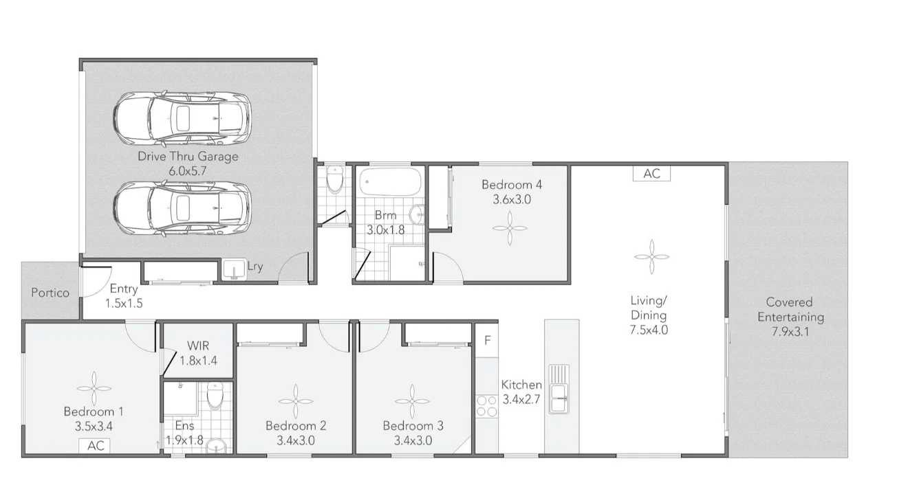
• Bedrooms: 4 • Bathrooms: 2
Description: *Property rental price will be $670 per week until the 21st of August, it will then increase to the advertised $695 per week* Welcome to 31 Olsen Circuit, Kallangur - a well-presented and spacious home designed for easy family living. Offering a practical layout, multiple living zones and a low-maintenance yard, this property is perfect for those seeking comfort, functionality and a convenient lifestyle. Positioned in a quiet, family-friendly pocket, this home is close to schools, shops, public transport and parklands, making everyday living a breeze. Features Include: • Four well-sized bedrooms with built-in wardrobes and ceiling fans • Master bedroom with ensuite and walk-in wardrobe • Open plan living and dining area with air conditioning • Modern kitchen with quality appliances, ample storage and bench space • Main bathroom with separate bath and shower • Covered outdoor entertaining area - perfect for year-round use • Fully fenced, low-maintenance backyard • Double lock-up garage with internal access • Internal laundry Kallangur is a highly convenient suburb located approximately 35 minutes from the Brisbane CBD. With easy access to the Bruce Highway, Westfield North Lakes, local schools, parks and public transport options including rail, it's a popular choice for families and commuters alike. Want to register for the next available inspection time? Simply scroll to 'Inspections' and register to attend or 'get in touch' and send through your enquiry and we will reply via email with all of the available inspection times, and also keep you up to date as new times become available. It's important that you register to attend any rental inspections so that we can keep you up to date with any time changes, delays or cancellations. Whilst every care is taken in the preparation of the information contained in this marketing. Harcourts Solutions will not be held liable for any errors in typing or information including alterations made to the property, and any inclusions that may not be represented in this advertisement. All interested parties should rely upon their own enquiries to determine whether or not the property and utilities (including available internet options) are suitable for their needs.
Location
Address
31 Olsen Circuit, Kallangur QLD 4503
City
Kallangur
Legal Notice
Our comprehensive database is populated by our meticulous research and analysis of public data. MirrorRealEstate strives for accuracy and we make every effort to verify the information. However, MirrorRealEstate is not liable for the use or misuse of the site's information. The information displayed on MirrorRealEstate.com is for reference only.