316 North Rd, Brighton East VIC 3187
Property Details
4
2
House
Description
Property Details: • Type: House
• Bedrooms: 4 • Bathrooms: 2
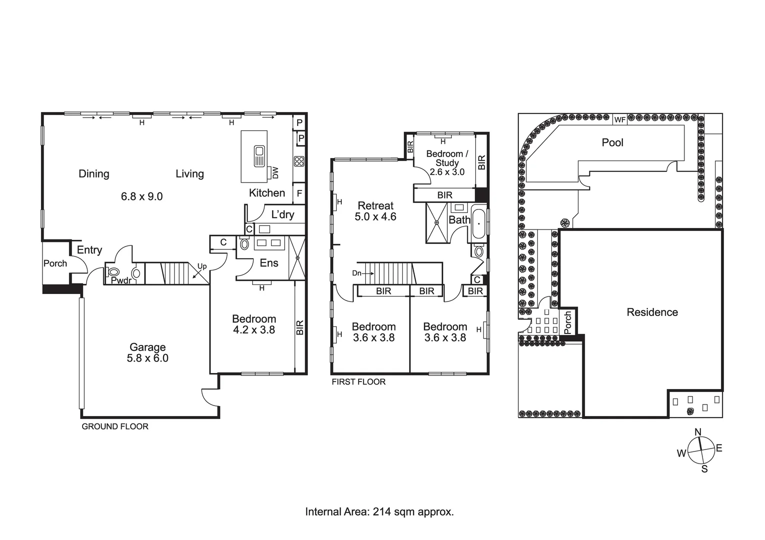
Description: On a sundrenched north-facing corner with convenient driveway access from Weber Street, this quality-built residence offers spacious interiors in a landscaped poolside setting. Opening to a light filled living and dining zone accented by striking polished concrete floors, the home is an ideal entertainer thanks to a modern stone kitchen boasting quality appliances and a central island bench, as well as multiple doors connecting indoors with the spacious alfresco patio and the solar-heated pool. The ground floor main suite with ample fitted wardrobes and a gleaming ensuite expands the target demographic to anyone looking for ease and accessibility. Upstairs a second living room, as will the three bedrooms (all with robes) - one a perfect study if preferred. A stylish family bathroom with separate WC, hydronic heating & split system cooling plus substantial storage including a sensational attic with dropdown ladder are additional highlights together with a fabulous laundry/possible pantry space, remote blinds & awnings on the northerly side. Offering security cameras, an alarm and double auto garage, the pristine property it is perfectly placed to access public transport and is near cafes, parklands and quality schooling. At a glance · Spacious low maintenance home with northerly aspect · Open plan living and dining zone · Quality stone kitchen · Alfresco patio and solar-heated pool · Downstairs main bedroom with ensuite · Second living area · Hydronic heating, split system cooling Property Code: 3376
Location
Address
316 North Rd, Brighton East VIC 3187
City
Brighton East
Features and Finishes
None
Legal Notice
Our comprehensive database is populated by our meticulous research and analysis of public data. MirrorRealEstate strives for accuracy and we make every effort to verify the information. However, MirrorRealEstate is not liable for the use or misuse of the site's information. The information displayed on MirrorRealEstate.com is for reference only.