321 Cooks Lane, Barraganyatti NSW 2441
Property Details
3
2
House
Description
Property Details: • Type: House
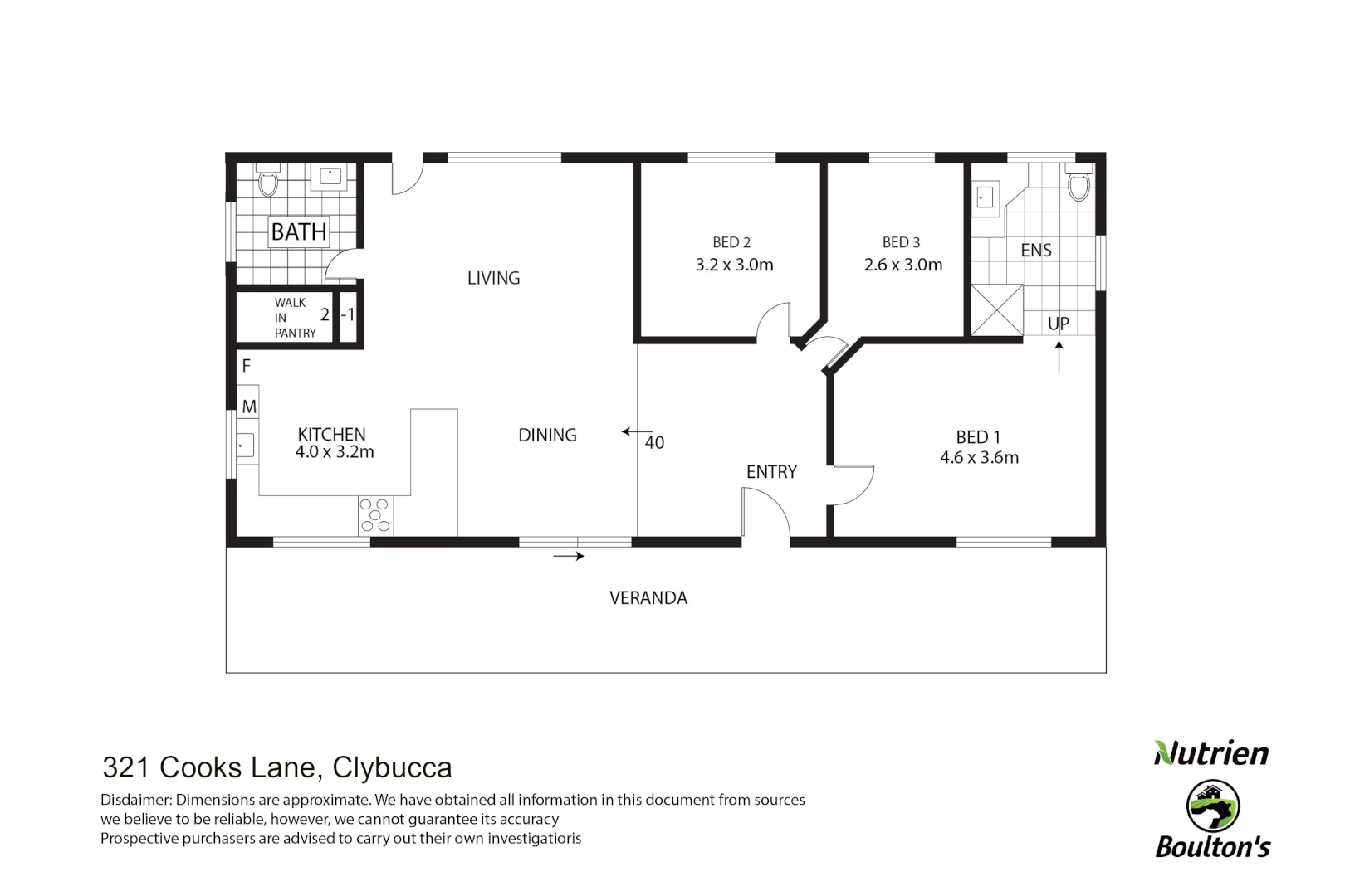
• Bedrooms: 3 • Bathrooms: 2
Description: Escape The Ordinary! Imagine waking up with no neighbours in sight. Imagine swapping the 9-to-5 grind for fresh air, quiet mornings, and room to roam. Imagine stepping into a lifestyle where the land works for you-not the other way around. Unbeatable Lifestyle Value Here's your chance to secure serious land and serious value-an incredible 18-hectare (approx. 44-acre) rural holding complete with a solid 3-bed, 2-bath brick veneer home, all set miles from suburbia yet only minutes from the Mid North Coast freeway. Convenience meets seclusion in the most unbeatable way. Located in Clybucca, roughly halfway between Kempsey and Macksville, this property offers an amazing blend of creek flats, slightly undulating sandy loam, and rich alluvial soils-with around 8 acres already cleared and ready for your plans. Whether you dream of hobby farming, horses, sustainable living, or simply stretching out in wide-open space, this block delivers. A Home With Huge Potential Yes-the home and shed may need some TLC. But with good bones, brick veneer construction, and a layout ready to be revived, the value here is undeniable. Roll up your sleeves and bring your vision to life-this is exactly the kind of opportunity buyers dream about but rarely find. This is outstanding value, pure and simple-a rural retreat with enormous possibility at a price that won't last.
Location
Address
321 Cooks Lane, Barraganyatti NSW 2441
City
Barraganyatti
Features and Finishes
None
Legal Notice
Our comprehensive database is populated by our meticulous research and analysis of public data. MirrorRealEstate strives for accuracy and we make every effort to verify the information. However, MirrorRealEstate is not liable for the use or misuse of the site's information. The information displayed on MirrorRealEstate.com is for reference only.