325 Roslyn Road, Highton VIC 3216
Property Details
4
2
House
Description
Property Details: • Type: House
• Bedrooms: 4 • Bathrooms: 2
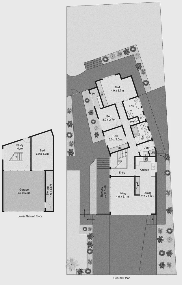
Description: *Updated and stylish family home set over two levels *The upper level consists of open plan living and three bedrooms *Main bedroom is generously sized and has built in robes and ensuite with large shower *The other two bedrooms have either walk in or built in robes *North facing, open plan, living space with plenty of natural light through the large windows which lead to the adjoining dining and kitchen zone *Light and bright kitchen with 900mm freestanding electric oven and gas cooktop, dishwasher, an abundance of storage and split system in meals area for heating and aircon *The lower level provides the ideal home office area or teenage retreat with a large fourth bedroom, study nook and internal access to the garage *Additional features include ceiling fans, large double garage and additional off street parking *Great sized, secure backyard with plenty of room for a trampoline or a game of backyard cricket *Zoned for Highton Primary School and Belmont High School *Perfectly positioned within walking distance to Highton Shopping Village, sporting facilities, Highton Primary School and local bus route *With easy access to Ring Road and close to Christian College, Epworth Hospital and Deakin University -Waurn Ponds campus *We ask that you register for an inspection and photo ID will need to be presented to enter a property. If an inspection is cancelled or changed you will not be advised unless you have registered for the inspection. *Due to the high demand for properties, we recommend that after you have sent an email enquiry and before you attend an inspection - that you submit an online application
Location
Address
325 Roslyn Road, Highton VIC 3216
City
Highton
Features and Finishes
None
Legal Notice
Our comprehensive database is populated by our meticulous research and analysis of public data. MirrorRealEstate strives for accuracy and we make every effort to verify the information. However, MirrorRealEstate is not liable for the use or misuse of the site's information. The information displayed on MirrorRealEstate.com is for reference only.