33 Yeramba Crescent, Terrigal NSW 2260
Property Details
4
1
House
Description
Property Details: • Type: House
• Bedrooms: 4 • Bathrooms: 1
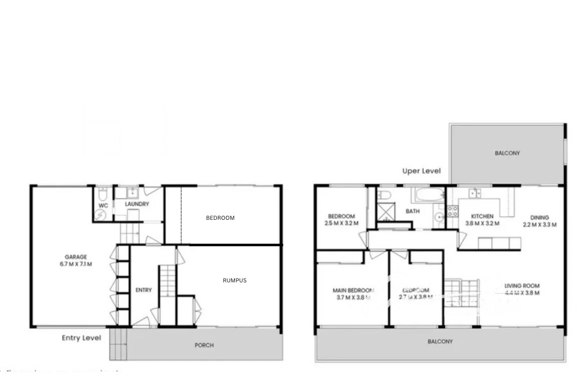
Description: Fantastic 4 bedroom home ideally positioned in one of Terrigal's most central locations. Featuring 4 bedrooms with built-ins (ceiling fans in 2), large modern kitchen with dishwasher, separate lounge and dining plus downstairs family room. Also includes large modern bathroom (with bath), 2nd toilet, air conditioning, large covered front balcony (with lovely leafy outlook) and fantastic rear entertaining deck with ocean glimpses (providing that inside/outside living). Also includes auto LUG with great storage and drive through at rear for possible trailer/boat storage plus off street parking for 3 cars. Ideally located 900m to Terrigal High School, 2.2km to Terrigal beach, short drive to Erina Fair and close to public transport. Water usage included. FOR ALL ENQUIRES PLEASE CONTACT PHILIP LENEHAN on 0418622153 or [email protected].
Location
Address
33 Yeramba Crescent, Terrigal NSW 2260
City
Terrigal
Features and Finishes
None
Legal Notice
Our comprehensive database is populated by our meticulous research and analysis of public data. MirrorRealEstate strives for accuracy and we make every effort to verify the information. However, MirrorRealEstate is not liable for the use or misuse of the site's information. The information displayed on MirrorRealEstate.com is for reference only.