331 - 335 King Avenue, Durack QLD 4077
Property Details
Vacant Land
Description
Property Details: • Type: Vacant Land
• Bedrooms: 0 • Bathrooms: 0
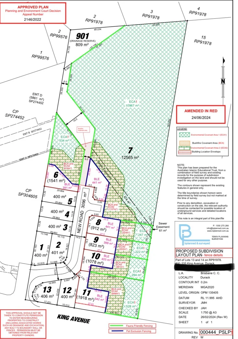
Description: New Land available to build your dream home. Secure your Lot NOW!! and settlement in approx 6 months. This newly released Lots of land to build your dream home on. With the choice from 13 lots starting from 400m2 to 12565m2. Land is highly sought after in Durack and this has to be one of the few available for sale. Location is second to none, set at the end of a nice and quiet street and still so close to all of your desired amenities. Only minutes to Blunder Rd with easy access to Ipswich and centenary highway. Walk to schools, shops and bus and just a short drive to Richlands, Oxley or Darra train stations. Secure Your Land NOW!! Call Mansur +61 405451786. Disclaimer: We have in preparing this information used our best endeavours to ensure that the information contained herein is true and accurate but accept no responsibility and disclaim all liability in respect of any errors, omissions, inaccuracies, or misstatements that may occur. Prospective purchasers should make their own enquiries to verify the information contained herein
Location
Address
331 - 335 King Avenue, Durack QLD 4077
City
Durack
Features and Finishes
None
Legal Notice
Our comprehensive database is populated by our meticulous research and analysis of public data. MirrorRealEstate strives for accuracy and we make every effort to verify the information. However, MirrorRealEstate is not liable for the use or misuse of the site's information. The information displayed on MirrorRealEstate.com is for reference only.