34 Bayfield Street 402
Property Details
2
2
Owner
Description
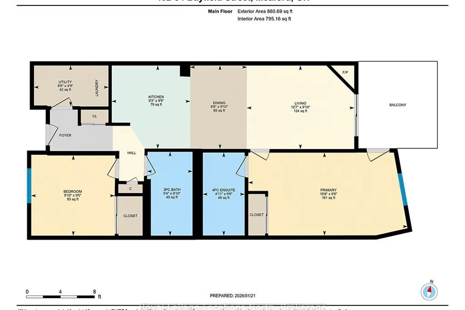
Welcome to 34 Bayfield Street, Unit 402 - a beautifully appointed top-floor 2-bedroom, 2-bath condo overlooking the harbour in one of the area's most sought-after locations. This charming residence offers the perfect blend of peaceful waterfront living and modern comfort.Step into the inviting foyer and enjoy a bright, open-concept layout filled with natural light, ideal for both everyday living and entertaining. The spacious living room features a sliding door that opens to a private balcony, showcasing stunning harbour views and creating the perfect indoor-outdoor connection. The living and dining areas flow seamlessly into the kitchen, which is equipped with modern appliances, ample counter space, and generous cabinetry to meet all your culinary needs.The primary bedroom suite offers a comfortable and relaxing retreat, complete with a private en-suite bath and picturesque water views. The second bedroom is generously sized and conveniently located near the second full bathroom, making it ideal for guests, a home office, or additional living space.One of the standout features of this top-floor unit is the serene harbour view, enjoyed from multiple rooms - perfect for sipping your morning coffee or unwinding at the end of the day. Additional highlights include a single-car garage for added convenience.Ideally situated just a short walk from the theatre, shops, and restaurants, 34 Bayfield Street offers an exceptional combination of comfort, convenience, and natural beauty. Don't miss your opportunity to make this stunning waterfront condo your new home.
Location
Address
34 Bayfield Street 402
City
Meaford
Features and Finishes
None
Legal Notice
Our comprehensive database is populated by our meticulous research and analysis of public data. MirrorRealEstate strives for accuracy and we make every effort to verify the information. However, MirrorRealEstate is not liable for the use or misuse of the site's information. The information displayed on MirrorRealEstate.com is for reference only.