34 Derby Drive
Property Details
4
3
Owner
Description
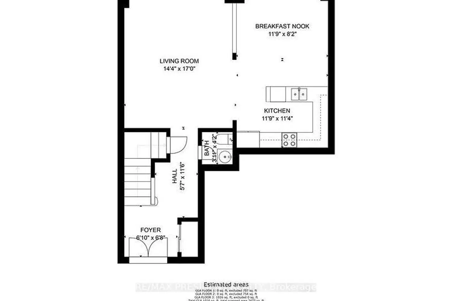
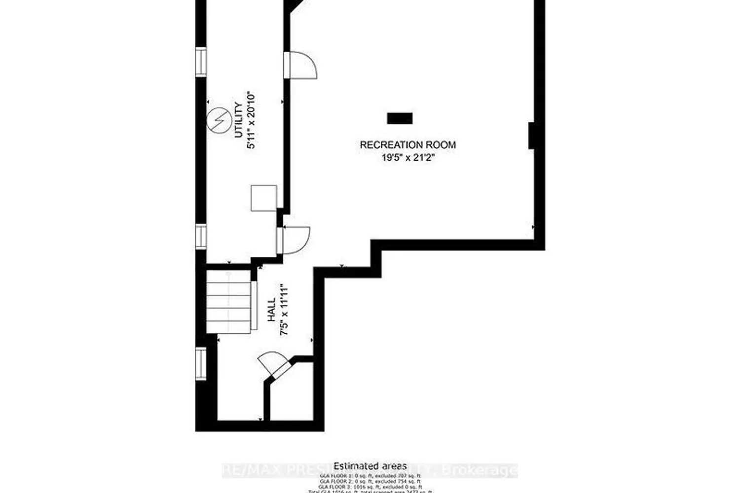
Welcome to this beautifully upgraded 3-bedroom, 2.5-bath residence located inEmpire's sought-after master-planned community of Avalon. Featuring an impressivedouble-door entry, this Camelot floor plan offers a bright, functional layout with 9-footceilings on the main level and a convenient powder room for guests. The gourmetkitchen is thoughtfully designed with upgraded cabinetry and ample space to entertainin style. Upstairs, you'll find three spacious bedrooms, including a primary retreatcomplete with a walk-in closet and a well-appointed ensuite bath, as well as the addedconvenience of second-floor laundry. The professionally finished basement providesadditional living space ideal for a family room, home office, or recreation area. Stepoutside to a fully fenced backyard featuring a charming gazebo-perfect for relaxing orhosting gatherings. Ideally situated close to schools, shopping, and just steps from thescenic Grand River and its picturesque trails, this exceptional home offers comfort,style, and an outstanding location.
Location
Address
34 Derby Drive
City
Epping
Features and Finishes
None
Legal Notice
Our comprehensive database is populated by our meticulous research and analysis of public data. MirrorRealEstate strives for accuracy and we make every effort to verify the information. However, MirrorRealEstate is not liable for the use or misuse of the site's information. The information displayed on MirrorRealEstate.com is for reference only.