1223 N Tustin Ave Unit A, Anaheim, CA 92807
Property Details
Description
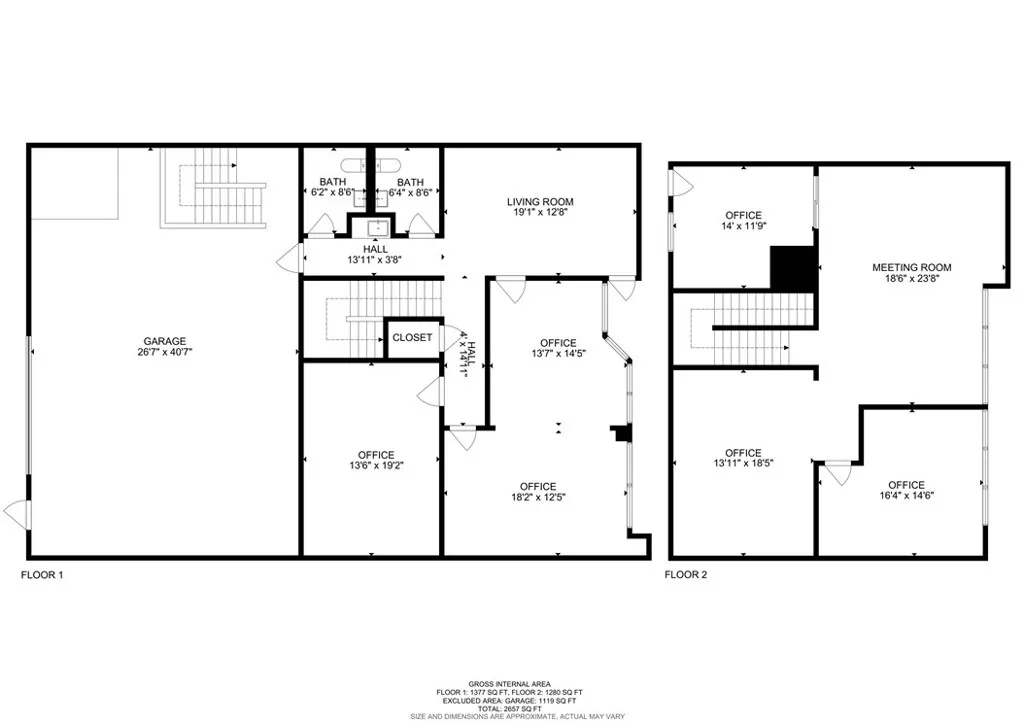
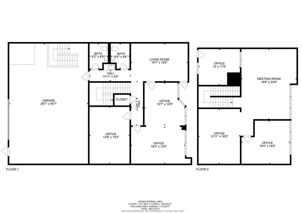
Highly visible office/warehouse property offering 3,485 SF, 2,219 SF of office space and 1,021 SF of warehouse. The functional two-story layout features a reception area, five private offices, a conference room, and a warehouse with 14' clear height. Located in Tustin Ave Business Park with exposure to approximately 28,000 vehicles per day, the property provides excellent visibility and convenient access to the 91, 55, and 57 Freeways. Additional highlights include a strong parking ratio of 5.74/1,000 SF and a well-maintained HOA. A 3D virtual tour is available, allowing prospective buyers to explore the layout and functionality of the property remotely.
PROPERTY DETAILS: Square Feet: 3240
INTERIOR FEATURES: • Cooling: Central Air • Heating: Central • Security: Smoke Detector(s)
EXTERIOR FEATURES: • Zoning: SP 2015-1
LISTING AGENT: Agent: Leo Gutierrez-Torres | Office: Pellego, Inc. | Phone: 7148758737 | Email: [email protected]
LISTING INFORMATION: MLS#: OC26080377 | Status: FOR SALE
Location
Address
1223 N Tustin Ave Unit A
City
Anaheim
Features and Finishes
Interior Features:
• Cooling: Central Air
• Heating: Central
• Security: Smoke Detector(s)
Exterior Features:
• Zoning: SP 2015-1
Legal Notice
Our comprehensive database is populated by our meticulous research and analysis of public data. MirrorRealEstate strives for accuracy and we make every effort to verify the information. However, MirrorRealEstate is not liable for the use or misuse of the site's information. The information displayed on MirrorRealEstate.com is for reference only.