35 Bearham Chase, Metung VIC 3904
Property Details
4
2
New Home Designs
Description
Property Details: • Type: New Home Designs
• Bedrooms: 4 • Bathrooms: 2
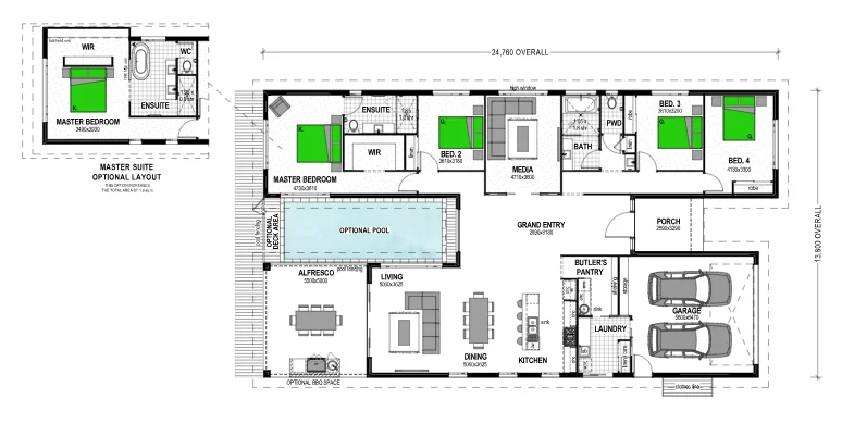
Description: House & Land Package by Stroud Homes East Gippsland SITE COSTS Site Works to 500mm The build of this house on this property is subject to council approval, site feature survey and soil testing. INCLUSIONS With over 90 FULLY LOADED inclusions, your home will come packed with everything you need to move in! Here are some of our highlight inclusions; - 900mm stainless steel induction cooker and electric oven as per builders range - Choice of built-in 860mm rangehood OR 900mm stainless steel canopy rangehood, ducted to outside air - Stainless steel dishwasher - Soft close cabinetry including cupboards and drawers - Stone benchtops in Kitchen, Laundry and Bathroom/Ensuite as per builders range - Coloured tapware throughout home - choice of colour as per builders range - Bulkheads above the overhead cupboards - Independent handover inspection - Double glazed sliding doors and windows - Flyscreens to all opening windows and sliding doors - Downlights throughout home - Heating and cooling - Colorbond roof, fascia and gutters ADDITIONAL INCLUSIONS 60mm Bradford Anticon blanket to full extent of roof area Heat Pump Hot Water Service Double glazed Bradnams windows Functional joinery throughout Slimline power points Suspended Rondo ceiling battens throughout Electronic entry door lock 450mm wall framing with termite treated timber Water point to fridge Soft close rimless toilets Genuine 7 Star energy rating ABOUT BREEZE 298 The Breeze 298 is the epitome of modern living and an entertainer's paradise! Step inside the grand entry to find an inviting open-plan kitchen that blends seamlessly with the living and dining areas, perfect for entertaining or family gatherings. Convenience is key with a spacious walk-in pantry connecting to the laundry and garage for ease of access. To the right wing of the home, discover four generously sized bedrooms, including a luxurious master suite boasting a spacious walk-in robe and ensuite. Unwind with loved ones in the dedicated media room, providing the ultimate retreat for relaxation and entertainment. ABOUT MELANIE MCCONNELL, Builder & Owner of, Stroud Homes East Gippsland Melanie is also a mother of three. Having lived in East Gippsland for many years, she possesses extensive knowledge of the local area. Dedicated and passionate about the construction industry, Melanie ensures her clients a smooth, transparent and stress-free experience. ABOUT STROUD HOMES With more than 20 years of design and building experience, Stroud Homes has a proven track record of success and a strong reputation for exceptional service and superior quality. The man behind the locally owned brand is James Stroud. Stroud Homes has a great reputation as an award-winning builder. We can provide simple and cost-effective advice, from our designs or yours. How do we do it? 1. Unbeatable buying power via excellent supplier relationships 2. Commitment to continuous improvement to customer service and quality 3. Pre-pricing new homes on vacant land Stroud Homes care about our customers and we do what we say we're going to do. We take the time to listen and work alongside our customers every step of the way, so the end result feels just right,like home. CONSUMER PLEASE NOTE Consumer please note: Stroud Homes is not a real estate agent, cannot sell land and will refer you to a licensed agent to complete any land purchase. Stroud Homes has used the price (as advertised by local real estate agents) for the block of land referred to in this package. Using this advertised price allows us to helpfully provide you with a price that is more realistic because we've tailor fit the home to the land - considering site works, water and sewer pipe and electrical lead - in lengths and other site specific items. Images and photographs are an example only and may have representations of fixtures and upgraded items not included in the package price or Fully Loaded Inclusions of Stroud Homes. See Stroud Homes website for House & Land Package Terms & Conditions
Location
Address
35 Bearham Chase, Metung VIC 3904
City
Metung
Features and Finishes
None
Legal Notice
Our comprehensive database is populated by our meticulous research and analysis of public data. MirrorRealEstate strives for accuracy and we make every effort to verify the information. However, MirrorRealEstate is not liable for the use or misuse of the site's information. The information displayed on MirrorRealEstate.com is for reference only.