35 Hunter Road
Property Details
4
4
Owner
Description
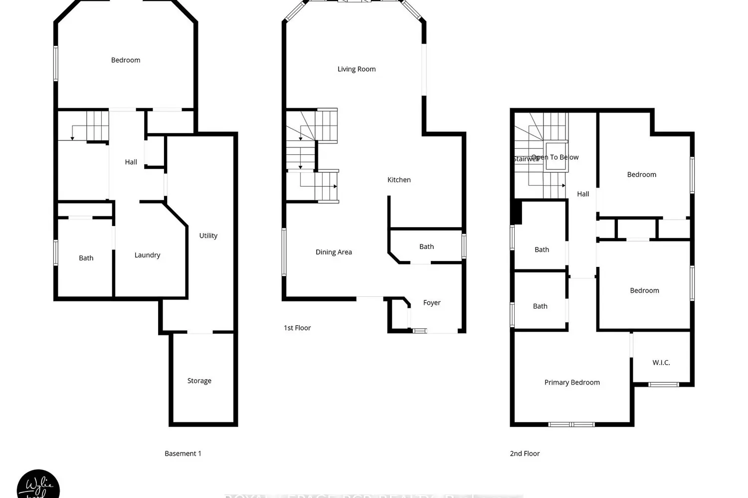
Welcome to this beautifully updated home in Orangeville's popular Sherwood Trails neighbourhood - a wonderful place for families to grow and make lasting memories. The open-concept main floor is filled with natural light and anchored by a stunning two-storey great room with a cozy gas fireplace, creating the perfect gathering space for everyday living and special occasions .A spacious formal dining room is ideal for family dinners and celebrations, while the efficient kitchen with newer stainless steel appliances keeps everything within easy reach. From the great room, step out to the covered back porch overlooking a private backyard that backs onto parkland-an ideal spot for kids to play, summer barbecues, or quiet evenings outdoors with no rear neighbours. Upstairs, the primary suite offers parents a peaceful retreat with vaulted ceilings, a 3-piece ensuite, and a large walk-in closet with a window. Two additional bedrooms are generously sized, each with double closets, making them perfect for children, guests, or a home office. The finished lower level adds valuable extra living space with a large fourth bedroom that could also be used as a family room, playroom, or teen retreat. A beautifully finished laundry room with heated floors makes day-to-day chores easy, and the convenient 3-piece bathroom is ideal for busy households. Located close to parks, trails, schools, and all of Orangeville's amenities, this is a home designed with family life in mind. Appliances 2023-24, Furnace/AC 2023, Upper flooring 2024, Roof 2017, Exterior painting 2022. Double gated entry to back yard for easy access.
Location
Address
35 Hunter Road
City
Orangeville
Features and Finishes
None
Legal Notice
Our comprehensive database is populated by our meticulous research and analysis of public data. MirrorRealEstate strives for accuracy and we make every effort to verify the information. However, MirrorRealEstate is not liable for the use or misuse of the site's information. The information displayed on MirrorRealEstate.com is for reference only.