36 ANDRESS WAY|Markham (Cedarwood), Ontario L3S0E9

CAD 1169880 For Sale
MLS: N12413919

Property Details

Bedrooms

4

Bathrooms

4

Property Type

Single Family

Description

MLS Number: N12413919

Property Details: • Type: Single Family • Ownership Type: Freehold • Bedrooms: 4 • Bathrooms: 4 • Building Type: Row / Townhouse • Building Size: N/A sqft • Building Storeys: N/A • Building Amenities: N/A • Floor Area: N/A • Land Size: N/A • Land Frontage: N/A • Parking Type: Attached Garage, Garage • Parking Spaces: N/A

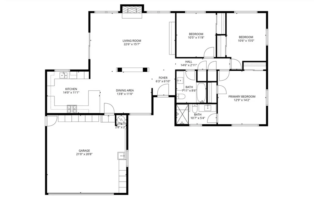
Description: "Castle Rock" solid built in 2023 fully brick freehold townhome backs onto Fair Tree Pond. Located at a premium pie-shape lot overlooks the green. This Corner unit of Oakley (Elev D) Home Has 2,600 Sq Ft Of living space features grand 9 Ft. high ceilings on main and second floor. 3 bedrooms on the 3rd floor + 1 in-law suite on the ground floor features a 3pc ensuite bathroom. Grand foyer entrance with tasteful decor of accent walls and led ceiling lights. Direct access to the garage. Custom Built home luxurious finishes: Kitchen With Servery area finished With Butler's Pantry and Sink; Caesarstone Countertops; Designer's Backsplash, S/S Appliances & U/Gas Line. Family room with Electric Fireplace, shelves and Accent Wall. 5Pc Ensuite bathroom with double sinks. Frameless glass shower doors. Close To Remington Parkview Golf and Country Club, Schools, Parks. All amenities: such as major banks, Kirkham cricket ground, Costco, Walmart, Canadian Tire, Home Depot etc. Schools: Milliken Mills High School (IB), Bill Hogarth Secondary School (FI), Middlefield Collegiate Institute, Milliken Mills Public School, Coppard Glen Public School. (41299249)

Agent Information: • Agents: BAUN KA HING TSANG • Contact: 416-399-0308; 416-399-0308 • Brokerage: RIGHT AT HOME REALTY • Website: http://www.rightathomerealty.com/

Time on Realtor: 12 hours ago

Location

Address

36 ANDRESS WAY|Markham (Cedarwood), Ontario L3S0E9

City

Markham (Cedarwood)

Legal Notice

Our comprehensive database is populated by our meticulous research and analysis of public data. MirrorRealEstate strives for accuracy and we make every effort to verify the information. However, MirrorRealEstate is not liable for the use or misuse of the site's information. The information displayed on MirrorRealEstate.com is for reference only.

Real Estate Broker
BAUN KA HING TSANG
Brokerage
RIGHT AT HOME REALTY
Top Tags
Likes

0

Views

26

This website uses cookies to ensure you get the best experience. Learn more