36 Queen Street, Penola SA 5277
Property Details
4
1
House
Description
Property Details: • Type: House
• Bedrooms: 4 • Bathrooms: 1
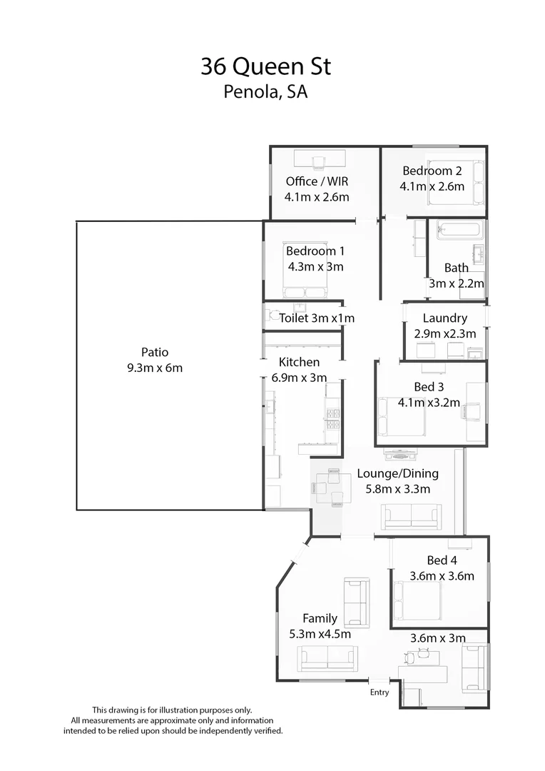
Description: Perfectly positioned in the heart of Penola, 36 Queen Street offers generous proportions, a highly flexible floorplan and the ease of low-maintenance living on a spacious 707m² corner allotment. Step inside and you'll immediately appreciate the scale and versatility of this home. Featuring four spacious bedrooms, the layout easily adapts to suit growing families, those working from home, or buyers simply wanting to live in one of Penola best locations. One of the bedrooms includes an adjoining room ideal as an impressive walk-in robe, nursery, office or with exciting potential to create an ensuite in the future. The home's flexible design continues with multiple living zones, allowing you to configure the spaces to suit your lifestyle. The front living area is perfect as a family room, games room, formal lounge or even a large home office, complete with a new WiFi-controlled split system air conditioner. At the heart of the home, the timber kitchen cabinetry provides warmth and character, offering ample storage. The kitchen flows seamlessly into the dining area and cosy lounge, where north-facing windows flood the space with natural light, creating a welcoming and light-filled hub for everyday living. Practicality is another standout, with a huge laundry, well-sized main bathroom and even a generously proportioned separate toilet. Outside, the carport merges effortlessly into a generous outdoor entertaining area, perfect for gatherings with family and friends. The property is framed by a beautiful established lawn, and secure fencing, offering space for children and pets to enjoy. Additional features include: - 30,000L of rainwater storage - 12 external roller shutters - 9.9kW solar system for energy efficiency - Ceiling fans throughout the home Spacious, adaptable and energy-efficient, this is a home that can evolve with your needs all in a prime central location. A fantastic opportunity to secure large-scale, flexible living in central Penola. Property Code: 1040
Location
Address
36 Queen Street, Penola SA 5277
City
Penola
Features and Finishes
None
Legal Notice
Our comprehensive database is populated by our meticulous research and analysis of public data. MirrorRealEstate strives for accuracy and we make every effort to verify the information. However, MirrorRealEstate is not liable for the use or misuse of the site's information. The information displayed on MirrorRealEstate.com is for reference only.