36E Arcadia Crescent, Bateman WA 6150
Property Details
3
2
House
Description
Property Details: • Type: House
• Bedrooms: 3 • Bathrooms: 2
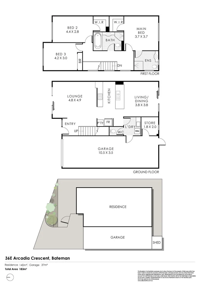
Description: Built circa 2008, this modern townhouse offers substantial living space with approximately 183 sqm internal area laid out over two levels. The living and dining areas are located on the ground floor and the bedrooms are on the first floor. The master bedroom features an ensuite and walk in wardrobe. The minor bedrooms are large enough to satisfy teenagers. A third toilet is available on the ground floor. Central to the house on the ground floor is the kitchen that is well appointed with stone bench top, gas cook top, dishwasher replaced last year and generous cabinet storage space. Hybrid flooring was installed in the bedrooms a few years ago for ease of maintenance. The ducted air con will keep your family comfortable throughout the seasons. Enjoy a cuppa in the private front courtyard screened off by a boundary fence. The home is energy efficient as well. Solar panels have been installed to save on power bills and TESLA charger installed for electric vehicles. The property is located within the reputable Rossmoyne Senior High School zone. Major amenities including Bateman Primary School, park and Bull Creek Train Station are within short walking distances. Fiona Stanley Hospital, Murdoch University, TAFE and Westfield Booragoon (Garden City) are also within close proximity. Simply a wonderful family home for busy executives or an excellent investment opportunity to add to your property portfolio. Highlights include: Within Rossmoyne Senior High School zone Short walking distances to Bateman Primary School, park, public transport & Bull Creek Train Station; Fiona Stanley Hospital, Murdoch University, TAFE & Westfield Booragoon within close proximity Private front courtyard secured with boundary wall fence Spacious lounge Family living & dining to the rear Large master bedroom features ensuite & walk-in wardrobe Two other spacious bedrooms with built-in wardrobes Common bathroom features bath, shower & toilet Three toilets Kitchen features stone bench top, gas cook top, rangehood, dishwasher replaced in 2025 & abundant cabinet storage space Hybrid floorboards to living areas & bedrooms Ducted refrigerated air-con system Gas instantaneous hot water system Solar panel system Tesla charger included Double tandem garage with automatic door Common wall only to garage Storeroom in garage Quarterly strata levy - $1,140.90 183 sqm approx. internal area 188 sqm approx. block size Disclaimer: All information contained has been prepared for advertising and marketing purposes only and is not intended to form part of any contract. Whilst every effort is made for the accuracy of these information, which is believed to be correct, neither the Agent nor the client nor servants of both, guarantee their accuracy and accept no responsibility for the results of any actions taken, or reliance placed upon this document. Interested parties should make independent enquiries and rely on their personal judgement to satisfy themselves in all respects. Property Code: 2005
Location
Address
36E Arcadia Crescent, Bateman WA 6150
City
Bateman
Features and Finishes
None
Legal Notice
Our comprehensive database is populated by our meticulous research and analysis of public data. MirrorRealEstate strives for accuracy and we make every effort to verify the information. However, MirrorRealEstate is not liable for the use or misuse of the site's information. The information displayed on MirrorRealEstate.com is for reference only.