37 Lakeside Drive, Bundalong VIC 3730
Property Details
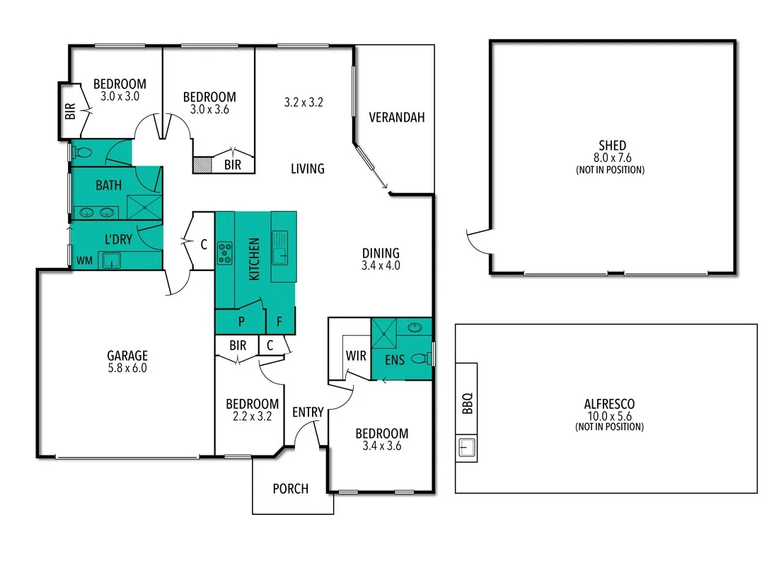
4
2
House
Description
Property Details: • Type: House
• Bedrooms: 4 • Bathrooms: 2
Description: Phone Enquiry ID: 231681 Set in the sought-after riverside town of Bundalongrenowned as a boating, fishing, and water-sport haventhis beautifully updated four-bedroom home offers the perfect retreat for families or holidaymakers. Positioned on a generous 905m² (approx.) block, the home features a light-filled open-plan kitchen, dining, and living area designed for relaxed indoor-outdoor living. Recent renovations have brought a fresh, modern feel throughout, and with ducted refrigerated heating and cooling, comfort is guaranteed year-round. Enjoy wide side access leading to a huge backyard and a high-clearance shedideal for boat storage. Just minutes from the main boat ramp, you're perfectly placed to make the most of everything Bundalong has to offer, from lazy days on the water to evenings at the local tavern or café. Whether you're looking for a permanent home or a holiday escape, this one is worth a look. Inspections welcomeget in touch to arrange a viewing.
Location
Address
37 Lakeside Drive, Bundalong VIC 3730
City
Bundalong
Features and Finishes
None
Legal Notice
Our comprehensive database is populated by our meticulous research and analysis of public data. MirrorRealEstate strives for accuracy and we make every effort to verify the information. However, MirrorRealEstate is not liable for the use or misuse of the site's information. The information displayed on MirrorRealEstate.com is for reference only.