37 Oakridge Rise, Huntfield Heights SA 5163
Property Details
2
1
House
Description
Property Details: • Type: House
• Bedrooms: 2 • Bathrooms: 1
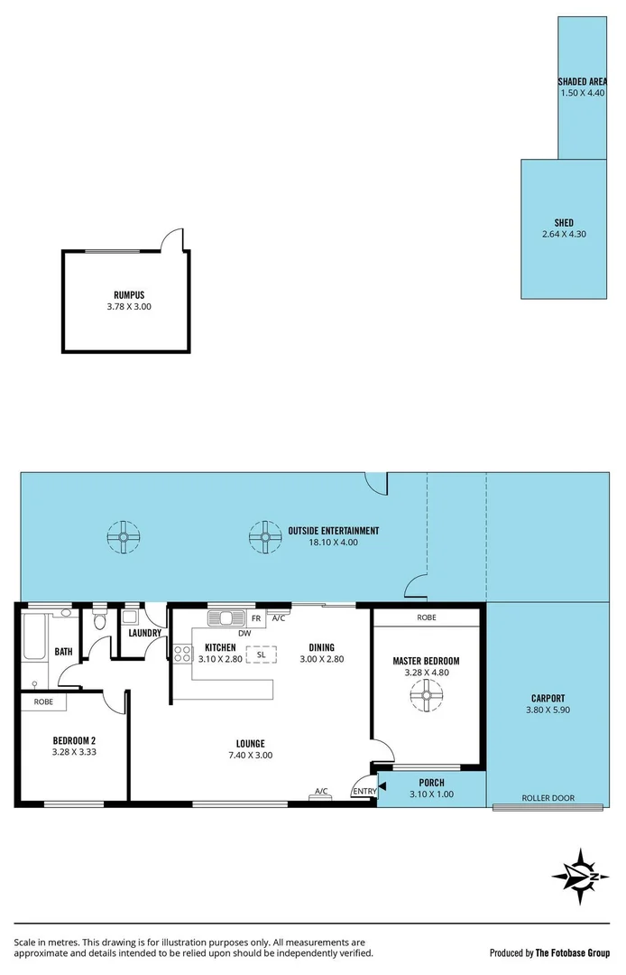
Description: ** WE ARE PLEASED TO ACCEPT APPLICATIONS PRIOR TO THE INSPECTION ONLINE VIA WWW.RESIDENTIALLETTING.COM.AU ** ** ALL ATTENDEES MUST REGISTER TO ATTEND THE OPEN. CLICK ON 'BOOK INSPECTION' TO REGISTER** Positioned in a quiet, established pocket, this well-presented home offers an exceptional blend of comfort, practicality, and lifestyle appeal. Thoughtfully laid out to maximise both indoor and outdoor living, the property provides multiple living zones, and an impressive outdoor entertaining area that will suit those who simply enjoy space to unwind. Inside, the home welcomes you with a light-filled lounge that flows seamlessly through to the dining and kitchen area, creating a central hub perfect for everyday living. The kitchen is well-equipped with ample bench space and storage, overlooking the living areas to ensure you're always connected while entertaining or preparing meals. The bedrooms are well-sized and positioned for privacy, with the master offering a peaceful retreat. A central bathroom, separate laundry, and practical layout enhance the home's functionality. What truly sets this property apart is the expansive outdoor area. The large covered entertaining space is ideal for hosting gatherings year-round, while the additional shed and rumpus room provide flexibility for hobbies, storage, or even a home office or gym setup. Property features include: - Generous master bedroom with robe - Second bedroom with built-in storage - Light-filled lounge and open dining area - Functional kitchen with ample storage and bench space - Central bathroom with separate laundry - Large covered outdoor entertaining area perfect for gatherings - Separate rumpus room - Spacious shed for storage or workshop use - Carport with roller door access for secure parking - Yard with plenty of usable outdoor space Located in a convenient and area, this home enjoys close proximity to a wide range of amenities. Nearby shopping options include Colonnades Shopping Centre, offering major retailers, supermarkets, dining, and entertainment. Public transport is easily accessible, with nearby bus routes and train services providing a straightforward commute to the CBD. You'll appreciate the selection of local schools and childcare facilities, as well as parks, reserves, and walking trails that encourage an active outdoor lifestyle. The Southern Expressway is also within easy reach, making travel north or south simple and efficient. This is a property that offers not just a place to live, but a lifestyle to enjoy, with space, flexibility, and convenience all in one appealing package. Disclaimer: All information contained in this advertisement has been gathered from sources we believe to be accurate, however, we cannot guarantee or give any warranty about the information provided and we accept no liability for any errors or omissions. Interested parties should seek independent advice before making any leasing decisions. RLA168235
Location
Address
37 Oakridge Rise, Huntfield Heights SA 5163
City
Huntfield Heights
Legal Notice
Our comprehensive database is populated by our meticulous research and analysis of public data. MirrorRealEstate strives for accuracy and we make every effort to verify the information. However, MirrorRealEstate is not liable for the use or misuse of the site's information. The information displayed on MirrorRealEstate.com is for reference only.